西池袋2丁目貸家
【 一戸建て 】大型犬の飼育が可能。初期費用のクレジットカード決済が可能です
| 最寄駅 | 所在地 | 間取り | 面積 | 築年月 | 賃料 管理費等 | 敷金 礼金 |
|---|---|---|---|---|---|---|
山手線・池袋駅 徒歩 8分 | 東京都豊島区西池袋2-2-18 | 5~ LDK | 183.89㎡ | 1994年04月 | 370,000
円
0円 | 2ヶ月 1ヶ月 |
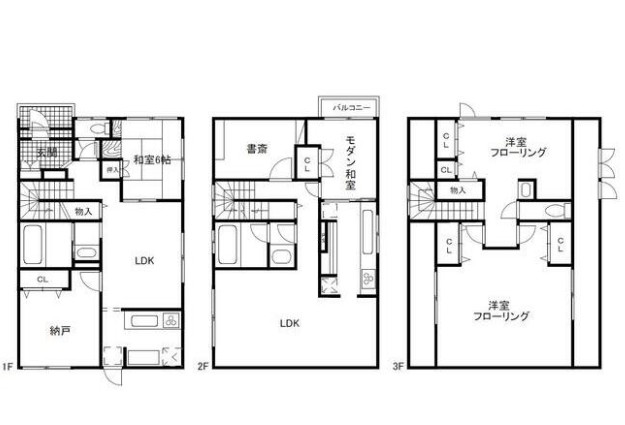
大型犬の飼育が可能な賃貸戸建て。グリル付きの3口ガスシステムキッチンや追い炊き、浴室乾燥機付きのお風呂、温水洗浄便座、独立洗面化粧台等が2台ずつある2世帯住宅。小型車を駐車するスペースがあります。
物件写真・間取り
物件概要
| 物件名 | 西池袋2丁目貸家 |
|---|
| 交通機関 | 山手線・池袋駅 徒歩 8分 山手線・目白駅 徒歩 6分 副都心線・雑司が谷駅 徒歩 13分 |
|---|
| 建物構造 | 軽量鉄骨 |
|---|
| 所在階 / 階数 | 3階建 |
|---|
| 契約期間 | 4年(定期借家) |
|---|
| 引渡 | 相談 |
|---|
| 現況 | 居住中 |
|---|
| 設備・条件 | 駐輪場/バイク置場/南向き/2面採光/3面採光/システムキッチン/ガスレンジ付/3口以上コンロ/グリル付/都市ガス/バストイレ別/オートバス/追焚機能浴室/浴室乾燥機/トイレ2ヶ所/温水洗浄便座/洗面所独立/シャワー付洗面台/24時間換気システム/バルコニー/2面バルコニー/フローリング/全居室フローリング/室内洗濯置/クロゼット/シューズボックス/TVインターホン/ペット相談/保証人不要/初期費用カード決済可/エアコン/通風良好 |
|---|
| 取引態様 | 媒介 |
|---|
| 情報登録日 | 2025年11月19日 |
|---|
| 情報更新日 | 2025年11月19日 |
|---|












