グランバリュー河田町
【 マンション 】初期費用のクレジットカード決済可能。リノベーションマンション
| 最寄駅 | 所在地 | 間取り | 面積 | 築年月 |
|---|---|---|---|---|
大江戸線・若松河田駅 徒歩 5分 | 東京都新宿区河田町5-5 | 2 LDK | 83.35㎡ | 1987年07月 |
この物件の募集は終了しています
最上階、角部屋、複数面採光の2LDKはインターネット利用料が無料。ペットの飼育が可能、L字型の3口システムキッチンや追い炊き、浴室乾燥機、三面鏡付洗髪洗面化粧台、温水洗浄便座等の設備も充実してます。
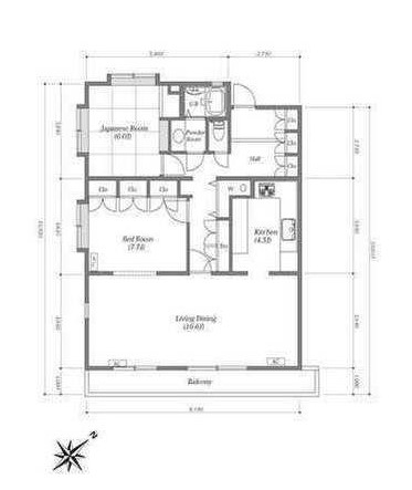
物件写真・間取り
物件概要
| 物件名 | グランバリュー河田町 |
|---|
| 交通機関 | 大江戸線・若松河田駅 徒歩 5分 都営新宿線・曙橋駅 徒歩 7分 丸ノ内線・四谷三丁目駅 徒歩 13分 |
|---|
| 建物構造 | RC |
|---|
| 所在階 / 階数 | 3階/3階建 |
|---|
| 主要採光面 | 南東側 |
|---|
| 契約期間 | 2年 |
|---|
| 引渡 | 相談 |
|---|
| 現況 | 居住中 |
|---|
| 設備・条件 | デザイナーズ/外壁タイル張り/最上階/東南向き/角住戸/2面採光/3面採光/システムキッチン/L字型キッチン/ガスレンジ付/3口以上コンロ/グリル付/都市ガス/バストイレ別/追焚機能浴室/浴室乾燥機/TV付浴室/温水洗浄便座/洗面所独立/三面鏡付洗面化粧台/シャワー付洗面台/24時間換気システム/バルコニー/南面バルコニー/フローリング/室内洗濯置/クロゼット/シューズボックス/ネット使用料不要/TVインターホン/リノベーション/ペット相談/ルームシェア相談/保証人不要/初期費用カード決済可/エアコン/通風良好 |
|---|
| 備考 | ペット飼育時:敷金、礼金1ヶ月追加 |
|---|
| 取引態様 | 媒介 |
|---|
| 情報登録日 | 2024年02月07日 |
|---|
| 情報更新日 | 2024年02月07日 |
|---|




















