ステージグランデ尾久
【 マンション 】初期費用のクレジットカード決済可能。インターネット利用料無料
| 最寄駅 | 所在地 | 間取り | 面積 | 築年月 |
|---|---|---|---|---|
高崎線・尾久駅 徒歩 5分 | 東京都北区昭和町3-10-1 | 1 LDK | 30.96㎡ | 2016年09月 |
この物件の募集は終了しています
南西向き、ルーフバルコニー含む二面バルコニーが広がる角部屋はインターネット利用料が無料。2口ガスのカウンターキッチンや浴室乾燥機、独立洗面台、温水洗浄便座、エアコン等の設備に優れた分譲マンション。
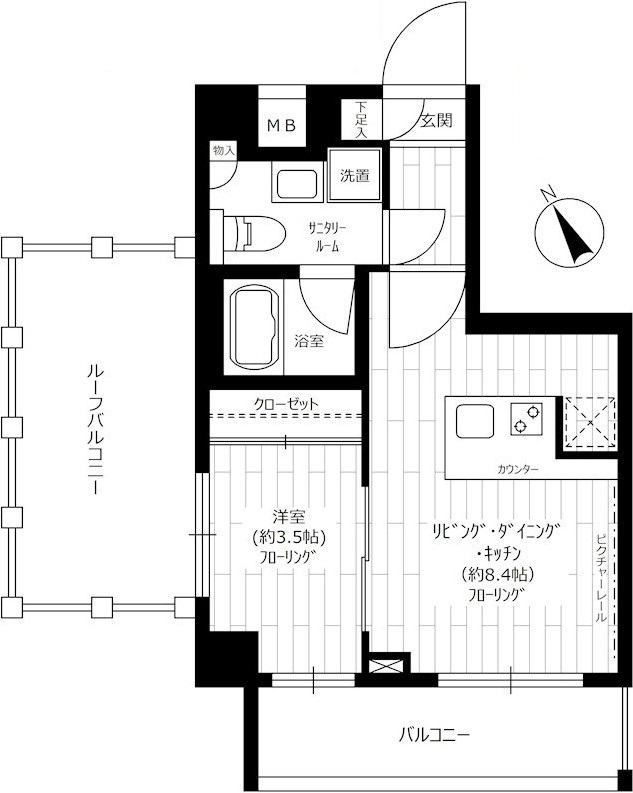
物件写真・間取り
物件概要
| 物件名 | ステージグランデ尾久 |
|---|
| 交通機関 | 高崎線・尾久駅 徒歩 5分 京浜東北線・上中里駅 徒歩 11分 都電荒川線・荒川車庫前駅 徒歩 3分 |
|---|
| 間取り詳細 | LDK:8.4畳 洋室:3.5畳 |
|---|
| 建物構造 | RC |
|---|
| 所在階 / 階数 | 6階/7階建 |
|---|
| 主要採光面 | 南西側 |
|---|
| 契約期間 | 2年 |
|---|
| 引渡 | 即入居 |
|---|
| 現況 | 空 |
|---|
| 設備・条件 | 分譲賃貸/高層階/エレベーター/24時間ゴミ出し可/宅配ボックス/敷地内ごみ置き場/駐輪場/南西向き/角住戸/2面採光/オートロック/ダブルロックキー/ディンプルキー/防犯カメラ/システムキッチン/対面式キッチン/ガスレンジ付/2口コンロ/都市ガス/バストイレ別/浴室乾燥機/温水洗浄便座/洗面所独立/シャワー付洗面台/24時間換気システム/バルコニー/ルーフバルコニー/南面バルコニー/2面バルコニー/フローリング/全居室フローリング/室内洗濯置/クロゼット/シューズボックス/BS・CS/ネット使用料不要/光ファイバー/TVインターホン/即入居可/保証人不要/初期費用カード決済可/エアコン/眺望良好/通風良好/陽当り良好 |
|---|
| 備考 | 分譲賃貸マンション情報が豊富なリガール |
|---|
| 取引態様 | 媒介 |
|---|
| 情報登録日 | 2023年08月11日 |
|---|
| 情報更新日 | 2023年08月11日 |
|---|
















