エルファーロ神楽坂
【 マンション 】【仲介手数料、敷金、礼金不要】追い炊き等の設備に優れた角部屋
| 最寄駅 | 所在地 | 間取り | 面積 | 築年月 |
|---|---|---|---|---|
中央線・飯田橋駅 徒歩 8分 | 東京都新宿区新小川町8-13 | 1 DK | 30.05㎡ | 2021年06月 |
この物件の募集は終了しています
【敷金・礼金・仲介手数料不要】インターネット、Wi-fiが無料で利用可能な角部屋、複数面採光の1DKは2口ガスのシステムキッチンや追い炊き、浴室乾燥機、独立洗面台、温水洗浄便座等の設備が充実してます
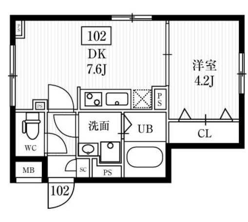
物件写真・間取り
物件概要
| 物件名 | エルファーロ神楽坂 |
|---|
| 交通機関 | 中央線・飯田橋駅 徒歩 8分 東西線・神楽坂駅 徒歩 9分 有楽町線・江戸川橋駅 徒歩 12分 |
|---|
| 間取り詳細 | DK:7.6畳 洋室:4.2畳 |
|---|
| 建物構造 | RC |
|---|
| 所在階 / 階数 | 1階/5階建 |
|---|
| 主要採光面 | 西側 |
|---|
| 契約期間 | 2年 |
|---|
| 引渡 | 相談 |
|---|
| 現況 | 居住中 |
|---|
| 設備・条件 | 宅配ボックス/角住戸/2面採光/3面採光/オートロック/ダブルロックキー/防犯カメラ/システムキッチン/ガスレンジ付/2口コンロ/都市ガス/バストイレ別/オートバス/追焚機能浴室/浴室乾燥機/温水洗浄便座/洗面所独立/24時間換気システム/フローリング/全居室フローリング/室内洗濯置/クロゼット/シューズボックス/ネット使用料不要/TVインターホン/敷金・礼金不要/礼金不要/仲介手数料不要/保証人不要/エアコン/通風良好 |
|---|
| 備考 | 初期費用のお得な物件情報が豊富なリガール株式会社 |
|---|
| 取引態様 | 媒介 |
|---|
| 情報登録日 | 2023年03月17日 |
|---|
| 情報更新日 | 2023年03月17日 |
|---|









