コンフィール目白
【 マンション 】追い炊きオートバスやシステムキッチン等の設備に優れた角部屋
| 最寄駅 | 所在地 | 間取り | 面積 | 築年月 |
|---|---|---|---|---|
山手線・高田馬場駅 徒歩 6分 | 東京都豊島区高田3-32-7 | 1 LDK | 45.79㎡ | 2002年07月 |
この物件の募集は終了しています
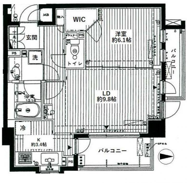
角部屋、二面バルコニーが広がる風通しに優れた1LDKはウォークインクローゼットがあり収納豊富。グリル付きのシステムキッチンや追い炊きオートバス、浴室乾燥機、シャワートイレ、独立洗面台等の設備が充実。
物件写真・間取り
物件概要
| 物件名 | コンフィール目白 |
|---|
| 交通機関 | 山手線・高田馬場駅 徒歩 6分 山手線・目白駅 徒歩 7分 副都心線・雑司が谷駅 徒歩 14分 |
|---|
| 間取り詳細 | LDK:13.2畳 洋室:6.1畳 |
|---|
| 建物構造 | SRC |
|---|
| 所在階 / 階数 | 3階/9階建 |
|---|
| 主要採光面 | 東側 |
|---|
| 契約期間 | 2年 |
|---|
| 引渡 | 相談 |
|---|
| 現況 | 居住中 |
|---|
| 設備・条件 | 分譲賃貸/エレベーター/24時間ゴミ出し可/宅配ボックス/敷地内ごみ置き場/角住戸/2面採光/オートロック/防犯カメラ/システムキッチン/ガスレンジ付/3口以上コンロ/グリル付/都市ガス/バストイレ別/オートバス/追焚機能浴室/浴室乾燥機/温水洗浄便座/洗面所独立/24時間換気システム/バルコニー/2面バルコニー/フローリング/全居室フローリング/室内洗濯置/クロゼット/ウォークインクロゼット/シューズボックス/TVインターホン/保証人不要/エアコン/通風良好 |
|---|
| 備考 | 分譲賃貸マンション情報が豊富なリガール |
|---|
| 取引態様 | 媒介 |
|---|
| 情報登録日 | 2023年02月10日 |
|---|
| 情報更新日 | 2023年02月10日 |
|---|













