リビオレゾン王子飛鳥山
【 マンション 】カウンターキッチンや追い炊き、三面鏡付独立洗面台等の充実設備
| 最寄駅 | 所在地 | 間取り | 面積 | 築年月 |
|---|---|---|---|---|
京浜東北線・王子駅 徒歩 4分 | 東京都北区滝野川1-4-9 | 1 LDK | 31.51㎡ | 2019年11月 |
この物件の募集は終了しています
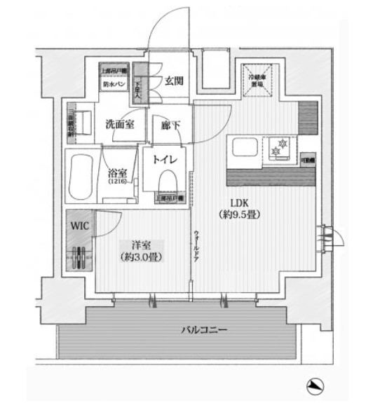
角部屋、二面採光の風通しに優れた1LDKはウォークインクローゼットがあり収納豊富。2口ガスのカウンターキッチンや追い炊きオートバス、浴室乾燥機、温水洗浄便座、三面鏡付洗髪洗面化粧台等の室内設備が充実
物件写真・間取り
物件概要
| 物件名 | リビオレゾン王子飛鳥山 |
|---|
| 交通機関 | 京浜東北線・王子駅 徒歩 4分 都電荒川線・王子飛鳥山駅 徒歩 1分 三田線・西巣鴨駅 徒歩 15分 |
|---|
| 間取り詳細 | LDK:9.5畳 洋室:3畳 |
|---|
| 建物構造 | RC |
|---|
| 所在階 / 階数 | 3階/14階建 |
|---|
| 主要採光面 | 東側 |
|---|
| 契約期間 | 2年 |
|---|
| 引渡 | 相談 |
|---|
| 現況 | 居住中 |
|---|
| 設備・条件 | 分譲賃貸/エレベーター/24時間ゴミ出し可/宅配ボックス/敷地内ごみ置き場/駐輪場/バイク置場/角住戸/2面採光/オートロック/防犯カメラ/システムキッチン/対面式キッチン/ガスレンジ付/2口コンロ/都市ガス/バストイレ別/オートバス/追焚機能浴室/浴室乾燥機/温水洗浄便座/洗面所独立/洗面化粧台/三面鏡付洗面化粧台/シャワー付洗面台/24時間換気システム/バルコニー/フローリング/全居室フローリング/室内洗濯置/クロゼット/ウォークインクロゼット/シューズボックス/BS・CS/CATV/ネット使用料不要/TVインターホン/保証人不要/エアコン/通風良好 |
|---|
| 備考 | 分譲マンション情報が豊富なリガール |
|---|
| 取引態様 | 媒介 |
|---|
| 情報登録日 | 2022年12月27日 |
|---|
| 情報更新日 | 2022年12月27日 |
|---|




















