アビタシオン
【 マンション 】2018年リノベーション済、ペット可、楽器可、エアコン全室
| 最寄駅 | 所在地 | 間取り | 面積 | 築年月 |
|---|---|---|---|---|
山手線・池袋駅 徒歩 7分 | 東京都豊島区西池袋3-6-18 | 3 LDK | 85.82㎡ | 1989年12月 |
この物件の募集は終了しています
南東向きの3LDK。2018年2月リノベーション済みの室内はIH3口のグリル付システムキッチンや追い炊き、浴室暖房乾燥機、三面鏡付洗髪洗面化粧台等の設備が整い、ペットの飼育や楽器の演奏が相談可能です
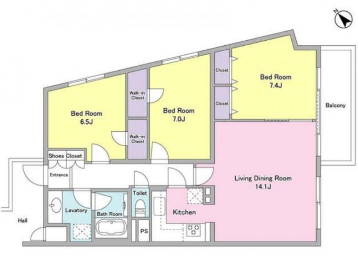
物件写真・間取り
物件概要
| 物件名 | アビタシオン |
|---|
| 交通機関 | 山手線・池袋駅 徒歩 7分 山手線・目白駅 徒歩 12分 有楽町線・要町駅 徒歩 12分 |
|---|
| 間取り詳細 | LD:14.1畳 洋室:7.4畳、7畳、6.5畳 |
|---|
| 建物構造 | RC |
|---|
| 所在階 / 階数 | 3階/5階建 |
|---|
| 主要採光面 | 南東側 |
|---|
| 契約期間 | 2年 |
|---|
| 引渡 | 相談 |
|---|
| 現況 | 居住中 |
|---|
| 設備・条件 | エレベーター/24時間ゴミ出し可/宅配ボックス/敷地内ごみ置き場/駐輪場/東南向き/角住戸/2面採光/南面リビング/オートロック/防犯カメラ/システムキッチン/L字型キッチン/3口以上コンロ/IHクッキングヒーター/グリル付/都市ガス/バストイレ別/オートバス/追焚機能浴室/浴室乾燥機/温水洗浄便座/洗面所独立/三面鏡付洗面化粧台/シャワー付洗面台/24時間換気システム/バルコニー/南面バルコニー/フローリング/全居室フローリング/室内洗濯置/クロゼット/ウォークインクロゼット/ウォークインクロゼット2/シューズボックス/BS/CATV/光ファイバー/TVインターホン/リノベーション/ペット相談/楽器相談/エアコン/エアコン4台/エアコン全室 |
|---|
| 備考 | リノベーション物件情報が豊富なリガール株式会社 |
|---|
| 取引態様 | 媒介 |
|---|
| 情報登録日 | 2022年05月13日 |
|---|
| 情報更新日 | 2022年05月13日 |
|---|



















