ウエストパークタワー池袋
【 マンション 】【礼金、仲介手数料不要】32階建てタワーマンションの最上階
| 最寄駅 | 所在地 | 間取り | 面積 | 築年月 |
|---|---|---|---|---|
山手線・池袋駅 徒歩 2分 | 東京都豊島区西池袋3-21-13 | 3 LDK | 121.12㎡ | 2006年12月 |
この物件の募集は終了しています
【礼金、仲介手数料不要】ペットの飼育、楽器の演奏が可能な池袋駅徒歩2分のタワーマンション。コンシェルジュサービスやスカイラウンジ等の共用設備や床暖房、浄水器、インターネット利用料無料と室内設備も充実
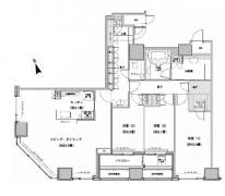
物件写真・間取り
物件概要
| 物件名 | ウエストパークタワー池袋 |
|---|
| 交通機関 | 山手線・池袋駅 徒歩 2分 山手線・目白駅 徒歩 13分 有楽町線・要町駅 徒歩 14分 |
|---|
| 間取り詳細 | LDK:27畳 洋室:10畳、6.2畳、6.1畳 |
|---|
| 建物構造 | RC |
|---|
| 所在階 / 階数 | 32階/32階建 |
|---|
| 主要採光面 | 南側 |
|---|
| 契約期間 | 2年 |
|---|
| 引渡 | 即入居 |
|---|
| 現況 | 空 |
|---|
| 設備・条件 | タワー型マンション/高層階/最上階/エレベーター/エレベーター2基/24時間ゴミ出し可/宅配ボックス/フロントサービス/敷地内ごみ置き場/シャッター車庫/駐輪場/バイク置場/角住戸/2面採光/オートロック/ダブルロックキー/ディンプルキー/防犯カメラ/24時間有人管理/LDK25畳以上/システムキッチン/対面式キッチン/ガスレンジ付/3口以上コンロ/グリル付/浄水器/ディスポーザー/都市ガス/バストイレ別/オートバス/追焚機能浴室/浴室乾燥機/温水洗浄便座/洗面所独立/洗面化粧台/三面鏡付洗面化粧台/24時間換気システム/床暖房/バルコニー/南面バルコニー/フローリング/全居室フローリング/室内洗濯置/クロゼット/ウォークインクロゼット/シューズボックス/シューズWIC/BS・CS/ネット使用料不要/TVインターホン/ペット相談/楽器相談/保証人不要/エアコン/眺望良好/通風良好 |
|---|
| 備考 | バイク置場:2200円/月 駐輪場:330円/月 |
|---|
| 取引態様 | 媒介 |
|---|
| 情報登録日 | 2022年01月11日 |
|---|
| 情報更新日 | 2022年01月11日 |
|---|
















