オープンレジデンシア本駒込
【 マンション 】インターネット利用料無料、床暖房や追い炊き等の設備が充実
| 最寄駅 | 所在地 | 間取り | 面積 | 築年月 |
|---|---|---|---|---|
山手線・駒込駅 徒歩 10分 | 東京都文京区本駒込5-28-12 | 1 LDK | 49.22㎡ | 2012年08月 |
この物件の募集は終了しています
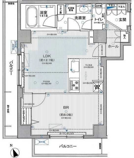
角部屋、二面バルコニーが広がる1LDKはリビングの床暖房や追い炊き、浴室乾燥機付きのお風呂、三面鏡付独立洗面台、温水洗浄便座、グリル付き3口カウンターキッチン等の設備に優れ、インターネット利用料が無料
物件写真・間取り
物件概要
| 物件名 | オープンレジデンシア本駒込 |
|---|
| 交通機関 | 山手線・駒込駅 徒歩 10分 三田線・千石駅 徒歩 12分 南北線・本駒込駅 徒歩 12分 |
|---|
| 間取り詳細 | LDK:12.1畳 洋室:8畳 |
|---|
| 建物構造 | RC |
|---|
| 所在階 / 階数 | 3階/6階建 |
|---|
| 主要採光面 | 南側 |
|---|
| 契約期間 | 2年 |
|---|
| 引渡 | 即入居 |
|---|
| 現況 | 空 |
|---|
| 設備・条件 | 分譲賃貸/エレベーター/24時間ゴミ出し可/宅配ボックス/敷地内ごみ置き場/駐輪場/南向き/角住戸/2面採光/オートロック/ダブルロックキー/防犯カメラ/LDK12畳以上/システムキッチン/対面式キッチン/ガスレンジ付/3口以上コンロ/グリル付/都市ガス/バストイレ別/オートバス/追焚機能浴室/浴室乾燥機/温水洗浄便座/洗面所独立/三面鏡付洗面化粧台/24時間換気システム/床暖房/バルコニー/南面バルコニー/2面バルコニー/フローリング/全居室フローリング/室内洗濯置/クロゼット/シューズボックス/BS・CS/ネット使用料不要/TVインターホン/即入居可/保証人不要/エアコン/エアコン2台/エアコン全室/通風良好 |
|---|
| 備考 | 分譲賃貸マンション情報が豊富なリガール株式会社 |
|---|
| 取引態様 | 媒介 |
|---|
| 情報登録日 | 2021年11月15日 |
|---|
| 情報更新日 | 2021年11月15日 |
|---|




















