東池袋4丁目戸建
【 一戸建て 】楽器相談可能、カウンターキッチン等の設備に優れた駐車場付戸建
| 最寄駅 | 所在地 | 間取り | 面積 | 築年月 |
|---|---|---|---|---|
有楽町線・東池袋駅 徒歩 3分 | 東京都豊島区東池袋4-30-5 | 4 LDK | 94.37㎡ | 2013年04月 |
この物件の募集は終了しています
全室複数面採光の風通しに優れた4LDKは3口カウンターキッチンや追い炊き、浴室乾燥機、独立洗面化粧台、トイレ2か所、ウォークインクローゼットと設備が充実。事務所利用や楽器の演奏、ルームシェアも相談可能
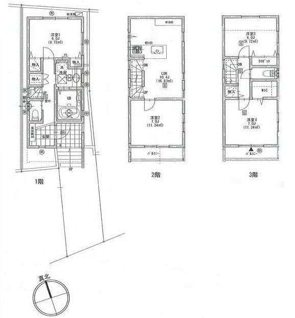
物件写真・間取り
物件概要
| 物件名 | 東池袋4丁目戸建 |
|---|
| 交通機関 | 有楽町線・東池袋駅 徒歩 3分 山手線・池袋駅 徒歩 12分 山手線・大塚駅 徒歩 12分 |
|---|
| 間取り詳細 | LDK:10.4畳 洋室:7畳、7畳、6畳、6畳 |
|---|
| 建物構造 | 木造 |
|---|
| 所在階 / 階数 | 3階建 |
|---|
| 主要採光面 | 南側 |
|---|
| 駐車場 | 付 |
|---|
| 駐車場料金 | 無料 |
|---|
| 契約期間 | 2年 |
|---|
| 引渡 | 即入居 |
|---|
| 現況 | 空 |
|---|
| 設備・条件 | 平面駐車場/駐車場1台無料/南向き/2面採光/システムキッチン/対面式キッチン/ガスレンジ付/3口以上コンロ/グリル付/都市ガス/バストイレ別/オートバス/追焚機能浴室/浴室乾燥機/トイレ2ヶ所/温水洗浄便座/洗面所独立/24時間換気システム/バルコニー/南面バルコニー/フローリング/全居室フローリング/室内洗濯置/クロゼット/ウォークインクロゼット/シューズボックス/TVインターホン/即入居可/ルームシェア相談/事務所相談/楽器相談/保証人不要/エアコン/通風良好 |
|---|
| 備考 | 賃貸戸建てをお探しの方はリガール株式会社にお任せください! |
|---|
| 取引態様 | 媒介 |
|---|
| 情報登録日 | 2021年08月24日 |
|---|
| 情報更新日 | 2021年08月24日 |
|---|




















