グランドコンシェルジュ氷川台
【 マンション 】インターネット利用料無料の新築分譲。独立洗面台等の設備が充実
| 最寄駅 | 所在地 | 間取り | 面積 | 築年月 |
|---|---|---|---|---|
有楽町線・氷川台駅 徒歩 6分 | 東京都練馬区桜台3-18-7 | 1 DK | 30.8㎡ | 2021年02月 |
この物件の募集は終了しています
最上階、角部屋、二面採光の1DKはインターネット利用料が無料。2口ガスのカウンターキッチンや独立洗面化粧台、浴室暖房乾燥機、温水洗浄便座等の室内設備や宅配ボックス、ゴミ置場等の共用部も充実の新築分譲マンション
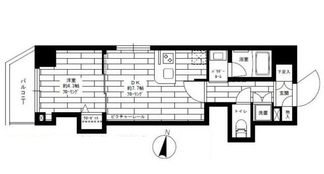
物件写真・間取り
物件概要
| 物件名 | グランドコンシェルジュ氷川台 |
|---|
| 交通機関 | 有楽町線・氷川台駅 徒歩 6分 西武有楽町線・新桜台駅 徒歩 8分 西武池袋線・江古田駅 徒歩 14分 |
|---|
| 間取り詳細 | DK:7.7畳 洋室:4.3畳 |
|---|
| 建物構造 | RC |
|---|
| 所在階 / 階数 | 8階/8階建 |
|---|
| 主要採光面 | 西側 |
|---|
| 契約期間 | 2年 |
|---|
| 引渡 | 即入居 |
|---|
| 現況 | 空 |
|---|
| 設備・条件 | 分譲賃貸/高層階/最上階/エレベーター/24時間ゴミ出し可/宅配ボックス/敷地内ごみ置き場/駐輪場/角住戸/2面採光/オートロック/カードキー/防犯カメラ/システムキッチン/対面式キッチン/ガスレンジ付/2口コンロ/都市ガス/バストイレ別/浴室乾燥機/温水洗浄便座/洗面所独立/シャワー付洗面台/24時間換気システム/バルコニー/フローリング/全居室フローリング/室内洗濯置/クロゼット/シューズボックス/BS・CS/ネット使用料不要/TVインターホン/即入居可/保証人不要/エアコン/眺望良好/通風良好 |
|---|
| 備考 | 新築物件や築浅物件情報が豊富なリガール株式会社 |
|---|
| 取引態様 | 媒介 |
|---|
| 情報登録日 | 2021年05月21日 |
|---|
| 情報更新日 | 2021年05月21日 |
|---|




















