ザ・パークハウス文京本駒込
【 マンション 】床暖房や食洗器、ディスポーザー、ミストサウナ等の設備が充実した高級分譲賃貸マンション
| 最寄駅 | 所在地 | 間取り | 面積 | 築年月 |
|---|---|---|---|---|
山手線・駒込駅 徒歩 8分 | 東京都文京区本駒込5-32-5 | 2 LDK | 70.75㎡ | 2018年01月 |
この物件の募集は終了しています
南向きの2SLDKは小型犬、猫の飼育が可能。ディスポーザーや食洗器、グリル付きの3口カウンターキッチンやミストサウナ、追い炊き付きのお風呂、独立洗面台等の設備に優れ、インターネットが無料で利用可能。
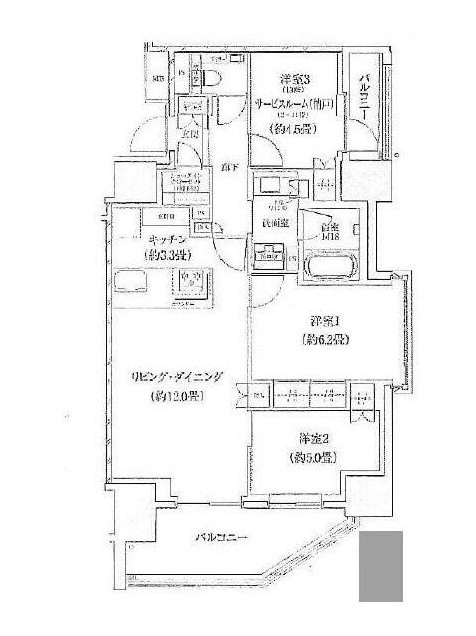
物件写真・間取り
物件概要
| 物件名 | ザ・パークハウス文京本駒込 |
|---|
| 交通機関 | 山手線・駒込駅 徒歩 8分 三田線・千石駅 徒歩 12分 京浜東北線・田端駅 徒歩 15分 |
|---|
| 間取り詳細 | LDK:15.3畳 洋室:6.2畳、5畳 S:4.5畳 |
|---|
| 建物構造 | RC |
|---|
| 所在階 / 階数 | 6階/13階建 |
|---|
| 主要採光面 | 南側 |
|---|
| 契約期間 | 2年 |
|---|
| 引渡 | 即入居 |
|---|
| 現況 | 空 |
|---|
| 設備・条件 | 分譲賃貸/エレベーター/24時間ゴミ出し可/宅配ボックス/敷地内ごみ置き場/駐輪場/南向き/角住戸/南面リビング/オートロック/ディンプルキー/防犯カメラ/LDK15畳以上/システムキッチン/対面式キッチン/ガスレンジ付/3口以上コンロ/食器洗乾燥機/ディスポーザー/都市ガス/バストイレ別/オートバス/追焚機能浴室/浴室乾燥機/ミストサウナ/温水洗浄便座/洗面所独立/24時間換気システム/床暖房/バルコニー/南面バルコニー/2面バルコニー/フローリング/全居室フローリング/室内洗濯置/クロゼット/シューズボックス/シューズWIC/CATV/ネット使用料不要/TVインターホン/即入居可/ペット相談/保証人不要/エアコン |
|---|
| 備考 | ファミリー物件情報が豊富なリガール株式会社 |
|---|
| 取引態様 | 媒介 |
|---|
| 情報登録日 | 2021年02月11日 |
|---|
| 情報更新日 | 2021年02月11日 |
|---|














