ステージグランデ文京白山
【 マンション 】ペットの飼育が可能、インターネット利用料無料の分譲マンション
| 最寄駅 | 所在地 | 間取り | 面積 | 築年月 |
|---|---|---|---|---|
三田線・白山駅 徒歩 6分 | 東京都文京区白山2-26-19 | 1 R | 25.67㎡ | 2011年07月 |
この物件の募集は終了しています
ペットの飼育が可能、インターネットが無料で楽しめる東向きの1R。独立洗面台やシステムキッチン、浴室乾燥機、温水洗浄便座等の室内設備や敷地内ゴミ置場、宅配ボックス、駐輪場等の共用部も充実の分譲マンション
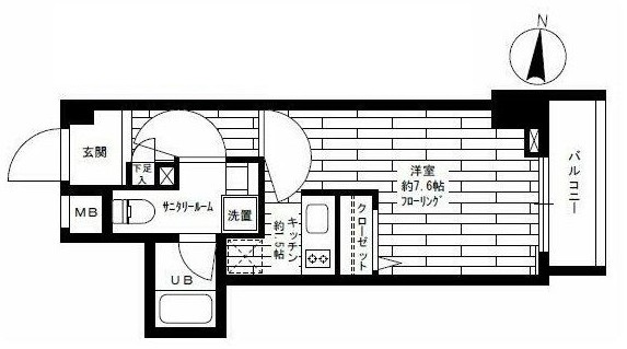
物件写真・間取り
物件概要
| 物件名 | ステージグランデ文京白山 |
|---|
| 交通機関 | 三田線・白山駅 徒歩 6分 丸ノ内線・後楽園駅 徒歩 10分 大江戸線・春日駅 徒歩 8分 |
|---|
| 間取り詳細 | 9.1畳 |
|---|
| 建物構造 | RC |
|---|
| 所在階 / 階数 | 5階/14階建 |
|---|
| 主要採光面 | 東側 |
|---|
| 契約期間 | 2年 |
|---|
| 引渡 | 即入居 |
|---|
| 現況 | 空 |
|---|
| 設備・条件 | 分譲賃貸/エレベーター/24時間ゴミ出し可/宅配ボックス/敷地内ごみ置き場/駐輪場/オートロック/カードキー/防犯カメラ/全居室洋室/システムキッチン/ガスレンジ付/2口コンロ/都市ガス/バストイレ別/脱衣所/浴室乾燥機/温水洗浄便座/洗面所独立/洗面化粧台/シャワー付洗面台/24時間換気システム/バルコニー/フローリング/全居室フローリング/室内洗濯置/クロゼット/シューズボックス/BS・CS/BS/CS/ネット使用料不要/光ファイバー/TVインターホン/ペット相談/保証人不要/エアコン |
|---|
| 備考 | ペット可マンションをお探しの方はリガールにお任せください! |
|---|
| 取引態様 | 媒介 |
|---|
| 情報登録日 | 2020年12月07日 |
|---|
| 情報更新日 | 2020年12月07日 |
|---|















