シンシア早稲田南
【 マンション 】追い炊きやシャンプードレッサー等の設備に優れた南向きの最上階
| 最寄駅 | 所在地 | 間取り | 面積 | 築年月 |
|---|---|---|---|---|
山手線・新大久保駅 徒歩 9分 | 東京都新宿区大久保3-2-15 | 1 DK | 32.72㎡ | 2004年03月 |
この物件の募集は終了しています
最上階、南向き、メゾネットタイプの1DKは追い炊きや浴室乾燥機付きのお風呂やシャンプードレッサー、グリル付き2口システムキッチン、エアコン2基と設備が充実。宅配ボックスやごみ置場等の共用部も充実の分譲賃貸マンション
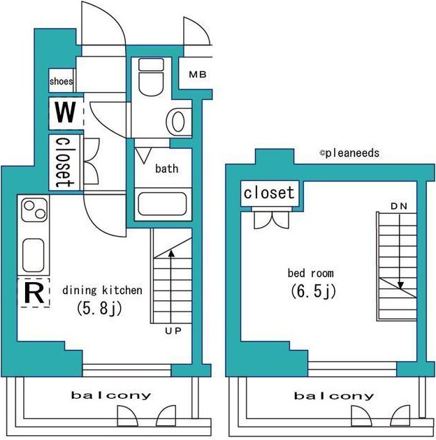
物件写真・間取り
物件概要
| 物件名 | シンシア早稲田南 |
|---|
| 交通機関 | 山手線・新大久保駅 徒歩 9分 副都心線・西早稲田駅 徒歩 6分 大江戸線・東新宿駅 徒歩 13分 |
|---|
| 間取り詳細 | DK:5.8畳 洋室:6.5畳 |
|---|
| 建物構造 | RC |
|---|
| 所在階 / 階数 | 5-6階/6階建 |
|---|
| 主要採光面 | 南側 |
|---|
| 契約期間 | 2年 |
|---|
| 引渡 | 10月上旬 |
|---|
| 現況 | 居住中 |
|---|
| 設備・条件 | 分譲賃貸/高層階/最上階/エレベーター/24時間ゴミ出し可/宅配ボックス/敷地内ごみ置き場/駐輪場/南向き/オートロック/ダブルロックキー/ディンプルキー/防犯カメラ/メゾネット/システムキッチン/ガスレンジ付/2口コンロ/グリル付/都市ガス/バストイレ別/追焚機能浴室/浴室乾燥機/洗面所独立/シャワー付洗面台/24時間換気システム/バルコニー/南面バルコニー/室内洗濯置/クロゼット/シューズボックス/BS・CS/CATV/光ファイバー/TVインターホン/エアコン/エアコン2台 |
|---|
| 備考 | 城北エリアのお洒落な物件はリガール株式会社にお任せください! |
|---|
| 取引態様 | 媒介 |
|---|
| 情報登録日 | 2020年09月01日 |
|---|
| 情報更新日 | 2020年09月01日 |
|---|




















