ラフォンテ文京茗荷谷
【 アパート 】バイク好きに嬉しい3.1畳の洗い場付きガレージのあるお部屋
| 最寄駅 | 所在地 | 間取り | 面積 | 築年月 |
|---|---|---|---|---|
丸の内線・新大塚駅 徒歩 7分 | 東京都文京区大塚4-17-2 | 1 DK | 36.84㎡ | 2018年12月 |
この物件の募集は終了しています
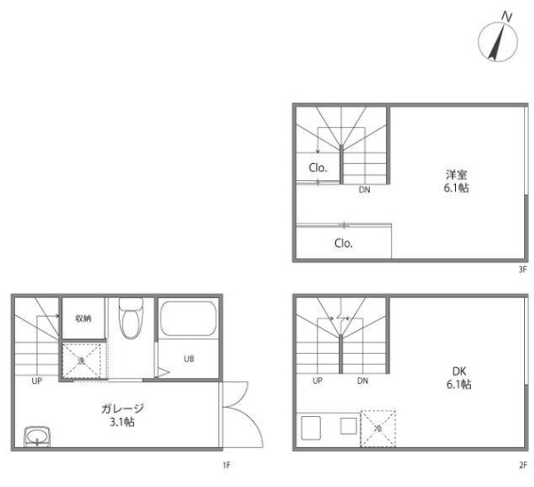
1階が3.1畳のガレージになっており、洗い場があるのでバイクのお手入れやペットの散歩の後に足を洗えます。メゾネットタイプのテラスハウス、浴室乾燥機や温水洗浄便座等の設備が整いインターネット利用料が無料
物件写真・間取り
物件概要
| 物件名 | ラフォンテ文京茗荷谷 |
|---|
| 交通機関 | 丸の内線・新大塚駅 徒歩 7分 丸の内線・茗荷谷駅 徒歩 11分 有楽町線・護国寺駅 徒歩 12分 |
|---|
| 間取り詳細 | DK:6.1畳 洋室:6.1畳 ガレージ:3.1畳 |
|---|
| 建物構造 | 木造 |
|---|
| 所在階 / 階数 | 1-3階/3階建 |
|---|
| 主要採光面 | 東側 |
|---|
| 契約期間 | 2年 |
|---|
| 引渡 | 6月中旬 |
|---|
| 現況 | 居住中 |
|---|
| 設備・条件 | 最上階/敷地内ごみ置き場/平面駐車場/駐輪場/バイク置場/メゾネット/IHクッキングヒーター/バストイレ別/浴室乾燥機/温水洗浄便座/洗面所独立/24時間換気システム/フローリング/全居室フローリング/室内洗濯置/クロゼット/ネット使用料不要/TVインターホン/ペット相談/保証人不要/エアコン |
|---|
| 備考 | バイクやお車をお持ちの方もリガール株式会社にお任せください! |
|---|
| 取引態様 | 媒介 |
|---|
| 情報登録日 | 2020年05月28日 |
|---|
| 情報更新日 | 2020年05月28日 |
|---|
















