フェニックス飯田橋
【 マンション 】インターネット利用料不要、カウンターキッチン等の設備が充実したデザイナーズ分譲賃貸マンション
| 最寄駅 | 所在地 | 間取り | 面積 | 築年月 |
|---|---|---|---|---|
有楽町線・飯田橋駅 徒歩 9分 | 東京都文京区水道1-2-6 | 1 LDK | 40.68㎡ | 2013年07月 |
この物件の募集は終了しています
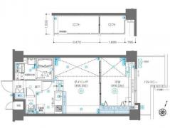
4.8畳のロフトがある1LDKはグリル付きのカウンターキッチンや追い炊き、浴室乾燥機付きのお風呂、独立洗面台、温水洗浄便座等の設備が充実。インターネットが無料で楽しめる分譲賃貸マンションです。
物件写真・間取り
物件概要
| 物件名 | フェニックス飯田橋 |
|---|
| 交通機関 | 有楽町線・飯田橋駅 徒歩 9分 丸の内線・後楽園駅 徒歩 10分 三田線・春日駅 徒歩 13分 |
|---|
| 間取り詳細 | LDK:8.3畳 洋室:6畳 |
|---|
| 建物構造 | RC |
|---|
| 所在階 / 階数 | 1階/6階建 |
|---|
| 主要採光面 | 北東側 |
|---|
| 契約期間 | 2年 |
|---|
| 引渡 | 5月下旬 |
|---|
| 現況 | 居住中 |
|---|
| 設備・条件 | デザイナーズ/外壁タイル張り/分譲賃貸/エレベーター/24時間ゴミ出し可/宅配ボックス/敷地内ごみ置き場/駐輪場/バイク置場/オートロック/ディンプルキー/防犯カメラ/ロフト/システムキッチン/対面式キッチン/ガスレンジ付/2口コンロ/グリル付/都市ガス/バストイレ別/オートバス/追焚機能浴室/浴室乾燥機/温水洗浄便座/洗面所独立/24時間換気システム/バルコニー/フローリング/室内洗濯置/クロゼット/シューズボックス/CATV/ネット使用料不要/TVインターホン/保証人不要/エアコン |
|---|
| 備考 | お洒落な物件情報が豊富なリガール株式会社! |
|---|
| 取引態様 | 媒介 |
|---|
| 情報登録日 | 2020年04月18日 |
|---|
| 情報更新日 | 2020年04月18日 |
|---|



















