黒田アパートメント
【 アパート 】2010年内外装デザイナーズフルリノベーション済みの1DK
| 最寄駅 | 所在地 | 間取り | 面積 | 築年月 |
|---|---|---|---|---|
大江戸線・若松河田駅 徒歩 7分 | 東京都新宿区余丁町6-28 | 1 DK | 32.3㎡ | 1966年04月 |
この物件の募集は終了しています
2010年に内外装デザイナーズフルリノベーション済みのオール電化の室内。IHシステムキッチンや追い炊き、浴室暖房乾燥機、温水洗浄便座、独立洗面台等の設備が整い、ウォークインクローゼットがあり収納も豊富
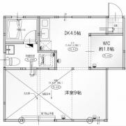
物件写真・間取り
物件概要
| 物件名 | 黒田アパートメント |
|---|
| 交通機関 | 大江戸線・若松河田駅 徒歩 7分 副都心線・東新宿駅 徒歩 9分 都営新宿線・曙橋駅 徒歩 11分 |
|---|
| 建物構造 | 木造 |
|---|
| 所在階 / 階数 | 2階/2階建 |
|---|
| 主要採光面 | 南東側 |
|---|
| 契約期間 | 2年 |
|---|
| 引渡 | 1月上旬 |
|---|
| 現況 | 居住中 |
|---|
| 設備・条件 | 耐震補強工事済/デザイナーズ/最上階/駐輪場/バイク置場/東南向き/角住戸/2面採光/ディンプルキー/システムキッチン/2口コンロ/IHクッキングヒーター/バストイレ別/追焚機能浴室/浴室乾燥機/温水洗浄便座/洗面所独立/オール電化/エコキュート/フローリング/室内洗濯置/クロゼット/ウォークインクロゼット/シューズボックス/光ファイバー/リノベーション/エアコン/通風良好 |
|---|
| 備考 | リノベーション物件をお探しの方はリガールにお任せください! |
|---|
| 取引態様 | 媒介 |
|---|
| 情報登録日 | 2019年11月19日 |
|---|
| 情報更新日 | 2019年11月19日 |
|---|




















