シーフォルム南池袋
【 マンション 】インターネット利用料無料、カウンターキッチン等の設備が充実した築浅分譲マンション
| 最寄駅 | 所在地 | 間取り | 面積 | 築年月 |
|---|---|---|---|---|
副都心線・雑司が谷駅 徒歩 4分 | 東京都豊島区南池袋4-10-4 | 1 DK | 25.41㎡ | 2018年06月 |
この物件の募集は終了しています
2018年築の分譲マンションはインターネット利用料が無料、宅配ボックスや敷地内ゴミ置場等の共用設備が充実。カウンターキッチンや浴室乾燥機、独立洗面台、温水洗浄便座等の水回りの設備が充実の1DK。
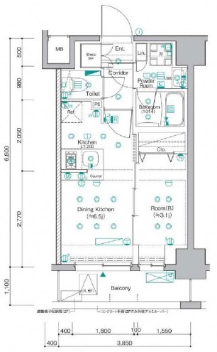
物件写真・間取り
物件概要
| 物件名 | シーフォルム南池袋 |
|---|
| 交通機関 | 副都心線・雑司が谷駅 徒歩 4分 有楽町線・東池袋駅 徒歩 6分 山手線・池袋駅 徒歩 12分 |
|---|
| 間取り詳細 | DK:6.5畳 洋室:3.1畳 |
|---|
| 建物構造 | RC |
|---|
| 所在階 / 階数 | 5階/7階建 |
|---|
| 主要採光面 | 西側 |
|---|
| 契約期間 | 2年 |
|---|
| 引渡 | 1月中旬 |
|---|
| 現況 | 居住中 |
|---|
| 設備・条件 | 分譲賃貸/エレベーター/24時間ゴミ出し可/宅配ボックス/敷地内ごみ置き場/築2年以内/平面駐車場/駐輪場/オートロック/防犯カメラ/システムキッチン/対面式キッチン/ガスレンジ付/2口コンロ/都市ガス/バストイレ別/浴室乾燥機/温水洗浄便座/洗面所独立/24時間換気システム/バルコニー/フローリング/全居室フローリング/室内洗濯置/クロゼット/シューズボックス/BS・CS/ネット使用料不要/TVインターホン/マルチメディアコンセント/保証人不要/エアコン/眺望良好 |
|---|
| 備考 | 豊島区のお洒落なお部屋探しはリガール株式会社にお任せください! |
|---|
| 取引態様 | 媒介 |
|---|
| 情報登録日 | 2019年11月19日 |
|---|
| 情報更新日 | 2019年11月19日 |
|---|














