ガーラ・グランディ北池袋
【 マンション 】床暖房や3口システムキッチン、追い炊き等設備が充実した角部屋
| 最寄駅 | 所在地 | 間取り | 面積 | 築年月 |
|---|---|---|---|---|
東武東上線・大山駅 徒歩 11分 | 東京都板橋区熊野町24-3 | 2 LDK | 48.6㎡ | 2010年01月 |
この物件の募集は終了しています
角部屋、二面採光の風通しに優れた2LDK。リビングの床暖房やグリル付き3口システムキッチン、追い炊きフルオートバス、浴室乾燥機、三面鏡付洗髪洗面化粧台、シャワートイレ等の設備が充実した分譲マンション
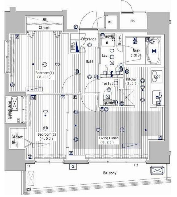
物件写真・間取り
物件概要
| 物件名 | ガーラ・グランディ北池袋 |
|---|
| 交通機関 | 東武東上線・大山駅 徒歩 11分 三田線・板橋区役所前駅 徒歩 12分 山手線・池袋駅 徒歩 21分 |
|---|
| 間取り詳細 | LDK:10.7畳 洋室:6畳、4畳 |
|---|
| 建物構造 | RC |
|---|
| 所在階 / 階数 | 9階/12階建 |
|---|
| 主要採光面 | 西側 |
|---|
| 契約期間 | 2年 |
|---|
| 引渡 | 11月中旬 |
|---|
| 現況 | 居住中 |
|---|
| 設備・条件 | 分譲賃貸/高層階/エレベーター/24時間ゴミ出し可/宅配ボックス/敷地内ごみ置き場/平面駐車場/駐輪場/角住戸/2面採光/オートロック/防犯カメラ/24時間緊急通報システム/システムキッチン/ガスレンジ付/3口以上コンロ/グリル付/都市ガス/バストイレ別/オートバス/追焚機能浴室/浴室乾燥機/洗面所独立/三面鏡付洗面化粧台/シャワー付洗面台/24時間換気システム/床暖房/バルコニー/フローリング/全居室フローリング/室内洗濯置/クロゼット/シューズボックス/BS・CS/CATV/光ファイバー/TVインターホン/保証人不要/エアコン/眺望良好/通風良好 |
|---|
| 備考 | 城北エリアの分譲賃貸情報が豊富なリガール株式会社で楽しいお部屋探しを! |
|---|
| 取引態様 | 媒介 |
|---|
| 情報登録日 | 2019年10月26日 |
|---|
| 情報更新日 | 2019年10月26日 |
|---|


















