ZOOM上板橋
【 マンション 】ペットの飼育が可能、インターネットが無料で楽しめる分譲賃貸マンション
| 最寄駅 | 所在地 | 間取り | 面積 | 築年月 |
|---|---|---|---|---|
東武東上線・上板橋駅 徒歩 6分 | 東京都板橋区上板橋2-10-7 | 1 LDK | 35.49㎡ | 2015年02月 |
この物件の募集は終了しています
南向きの1LDKはペットの飼育が可能、インターネットが無料で利用可能。グリル付きの3口システムキッチンや追い炊き、浴室乾燥機、三面鏡付洗面化粧台等の室内設備や宅配ボックス、バイク置場等の共用部も充実
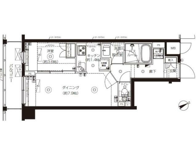
物件写真・間取り
物件概要
| 物件名 | ZOOM上板橋 |
|---|
| 交通機関 | 東武東上線・上板橋駅 徒歩 6分 東武東上線・東武練馬駅 徒歩 14分 有楽町線・氷川台駅 徒歩 23分 |
|---|
| 間取り詳細 | LDK:9.3畳 洋室:3.6畳 |
|---|
| 建物構造 | RC |
|---|
| 所在階 / 階数 | 4階/8階建 |
|---|
| 主要採光面 | 南西側 |
|---|
| 契約期間 | 2年 |
|---|
| 引渡 | 即入居 |
|---|
| 現況 | 空 |
|---|
| 設備・条件 | 分譲賃貸/エレベーター/24時間ゴミ出し可/宅配ボックス/敷地内ごみ置き場/駐輪場/バイク置場/南向き/南面2室/オートロック/ダブルロックキー/ディンプルキー/防犯カメラ/全居室洋室/システムキッチン/ガスレンジ付/3口以上コンロ/グリル付/都市ガス/バストイレ別/オートバス/追焚機能浴室/浴室乾燥機/温水洗浄便座/洗面所独立/洗面化粧台/三面鏡付洗面化粧台/シャワー付洗面台/24時間換気システム/バルコニー/南面バルコニー/フローリング/全居室フローリング/室内洗濯置/クロゼット/シューズボックス/CATV/ネット使用料不要/TVインターホン/ペット相談/保証人不要/エアコン |
|---|
| 備考 | ペット可の物件をお探しの方はリガール株式会社にお任せください! |
|---|
| 取引態様 | 媒介 |
|---|
| 情報登録日 | 2019年10月15日 |
|---|
| 情報更新日 | 2019年10月15日 |
|---|



















