エステムプラザ池袋ザ・ヴィンテージ
【 マンション 】独立洗面台等の設備が充実。初期費用のクレジットカード決済可能
| 最寄駅 | 所在地 | 間取り | 面積 | 築年月 | 賃料 管理費等 | 敷金 礼金 |
|---|---|---|---|---|---|---|
有楽町線・東池袋駅 徒歩 4分 | 東京都豊島区南池袋3-24-21 | 1 DK | 31.1㎡ | 2013年09月 | 122,000
円
12,000円 | 1ヶ月 1ヶ月 |
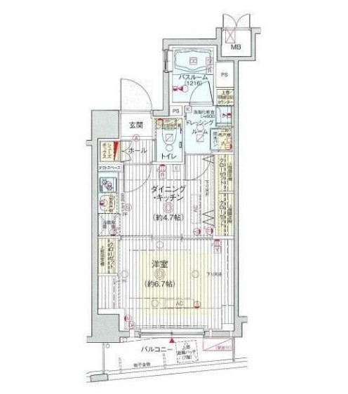
東池袋駅徒歩4分、雑司が谷駅徒歩6分、敷地内に駐車場や駐輪場がある交通面に優れた分譲マンション。2口ガスコンロのシステムキッチンや独立洗面台、浴室乾燥機、温水洗浄便座、エアコン等の室内設備も充実。
物件写真・間取り
物件概要
| 物件名 | エステムプラザ池袋ザ・ヴィンテージ |
|---|
| 交通機関 | 有楽町線・東池袋駅 徒歩 4分 副都心線・雑司が谷駅 徒歩 6分 山手線・池袋駅 徒歩 9分 |
|---|
| 建物構造 | RC |
|---|
| 所在階 / 階数 | 4階/9階建 |
|---|
| 主要採光面 | 東側 |
|---|
| 契約期間 | 2年 |
|---|
| 引渡 | 相談 |
|---|
| 設備・条件 | 分譲賃貸/エレベーター/24時間ゴミ出し可/宅配ボックス/敷地内ごみ置き場/平面駐車場/駐輪場/オートロック/防犯カメラ/全居室洋室/システムキッチン/ガスレンジ付/2口コンロ/都市ガス/バストイレ別/オートバス/追焚機能浴室/浴室乾燥機/TV付浴室/温水洗浄便座/洗面所独立/洗面化粧台/シャワー付洗面台/24時間換気システム/バルコニー/フローリング/全居室フローリング/室内洗濯置/クロゼット/シューズボックス/光ファイバー/TVインターホン/保証人不要/初期費用カード決済可/エアコン |
|---|
| 取引態様 | 媒介 |
|---|
| 情報登録日 | 2026年04月17日 |
|---|
| 情報更新日 | 2026年04月17日 |
|---|



















