ガーデン小石川
【 マンション 】追い炊き等の設備が充実。初期費用のクレジットカード決済が可能
| 最寄駅 | 所在地 | 間取り | 面積 | 築年月 | 賃料 管理費等 | 敷金 礼金 |
|---|---|---|---|---|---|---|
丸ノ内線・後楽園駅 徒歩 4分 | 東京都文京区小石川2-5-11 | 1 LDK | 43.61㎡ | 2010年02月 | 160,000
円
10,000円 | 1ヶ月 1ヶ月 |
角部屋、二面採光の1LDKはグリル付3口カウンターキッチンや追い炊き、三面鏡付独立洗面台、温水洗浄便座、エアコン2基等の設備に優れ、セントラル警備保障加入や窓、玄関に防犯センサー等セキュリティ面も充実
物件写真・間取り
物件概要
| 物件名 | ガーデン小石川 |
|---|
| 交通機関 | 丸ノ内線・後楽園駅 徒歩 4分 大江戸線・春日駅 徒歩 4分 総武線・水道橋駅 徒歩 15分 |
|---|
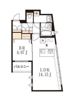
| 間取り詳細 | LDK:14.15畳 洋室:4.07畳 |
|---|
| 建物構造 | RC |
|---|
| 所在階 / 階数 | 1階/3階建 |
|---|
| 主要採光面 | 南側 |
|---|
| 契約期間 | 2年 |
|---|
| 引渡 | 相談 |
|---|
| 現況 | 居住中 |
|---|
| 設備・条件 | エレベーター/宅配ボックス/駐輪場/角住戸/2面採光/オートロック/ディンプルキー/防犯カメラ/セキュリティ会社加入済/LDK12畳以上/システムキッチン/対面式キッチン/ガスレンジ付/3口以上コンロ/グリル付/都市ガス/バストイレ別/オートバス/追焚機能浴室/浴室乾燥機/温水洗浄便座/洗面所独立/三面鏡付洗面化粧台/24時間換気システム/バルコニー/フローリング/全居室フローリング/室内洗濯置/クロゼット/シューズボックス/光ファイバー/TVインターホン/保証人不要/初期費用カード決済可/エアコン/エアコン2台/エアコン全室/通風良好 |
|---|
| 取引態様 | 媒介 |
|---|
| 情報登録日 | 2026年02月10日 |
|---|
| 情報更新日 | 2026年02月10日 |
|---|
















