メゾン・ド・キートス
【 アパート 】【仲介手数料無料】初期費用のクレジットカード決済が可能です
| 最寄駅 | 所在地 | 間取り | 面積 | 築年月 | 賃料 管理費等 | 敷金 礼金 |
|---|---|---|---|---|---|---|
山手線・巣鴨駅 徒歩 13分 | 東京都豊島区西巣鴨3-7-4 | 1 K | 28.08㎡ | 2016年12月 | 93,000
円
5,000円 | 1ヶ月 0ヶ月 |
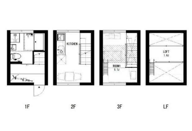
三方角部屋、自転車が停められる土間やロフトがある1階から3階のメゾネットタイプ。2016年築のデザイナーズアパートは温かみのある無垢材を使用、追い炊きやIHシステムキッチン、独立洗面台等の設備も充実
物件写真・間取り
物件概要
| 物件名 | メゾン・ド・キートス |
|---|
| 交通機関 | 山手線・巣鴨駅 徒歩 13分 三田線・西巣鴨駅 徒歩 6分 都電荒川線・庚申塚駅 徒歩 1分 |
|---|
| 建物構造 | 木造 |
|---|
| 所在階 / 階数 | 1-3階/3階建 |
|---|
| 主要採光面 | 南東側 |
|---|
| 契約期間 | 2年 |
|---|
| 引渡 | 相談 |
|---|
| 現況 | 居住中 |
|---|
| 設備・条件 | デザイナーズ/駐輪場/角住戸/3方角住戸/ダブルロックキー/ディンプルキー/防犯カメラ/ロフト/メゾネット/システムキッチン/2口コンロ/IHクッキングヒーター/都市ガス/バストイレ別/追焚機能浴室/温水洗浄便座/洗面所独立/24時間換気システム/フローリング/全居室フローリング/無垢材使用/室内洗濯置/光ファイバー/TVインターホン/仲介手数料不要/保証人不要/初期費用カード決済可/エアコン |
|---|
| 取引態様 | 媒介 |
|---|
| 情報登録日 | 2026年01月14日 |
|---|
| 情報更新日 | 2026年01月14日 |
|---|

















