La Maisonde KAKEGAWA
【 マンション 】独立洗面台等の設備が充実。初期費用のクレジットカード決済可能
| 最寄駅 | 所在地 | 間取り | 面積 | 築年月 | 賃料 管理費等 | 敷金 礼金 |
|---|---|---|---|---|---|---|
山手線・巣鴨駅 徒歩 10分 | 東京都文京区千石4-39-18 | 1 K | 31.18㎡ | 2007年02月 | 113,000
円
5,000円 | 1ヶ月 1ヶ月 |
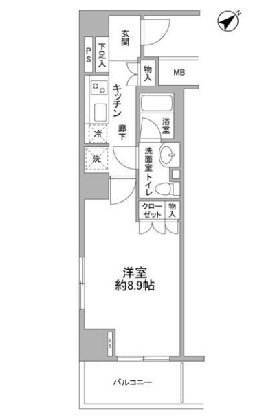
南東向き、角部屋、二面採光の風通しに優れた室内は2口ガスコンロのシステムキッチンや独立洗面台、エアコン等の設備に優れ、モニター付オートロックやエレベーター、宅配ボックス等の共用設備も充実してます。
物件写真・間取り
物件概要
| 物件名 | La Maisonde KAKEGAWA |
|---|
| 交通機関 | 山手線・巣鴨駅 徒歩 10分 三田線・千石駅 徒歩 2分 南北線・駒込駅 徒歩 18分 |
|---|
| 間取り詳細 | 8.9畳 |
|---|
| 建物構造 | RC |
|---|
| 所在階 / 階数 | 4階/10階建 |
|---|
| 主要採光面 | 南東側 |
|---|
| 契約期間 | 2年 |
|---|
| 引渡 | 相談 |
|---|
| 現況 | 空 |
|---|
| 設備・条件 | エレベーター/宅配ボックス/東南向き/角住戸/2面採光/オートロック/システムキッチン/ガスレンジ付/2口コンロ/都市ガス/バストイレ別/洗面所独立/バルコニー/南面バルコニー/フローリング/室内洗濯置/クロゼット/シューズボックス/BS・CS/CATV/光ファイバー/TVインターホン/保証人不要/初期費用カード決済可/エアコン/通風良好/陽当り良好 |
|---|
| 取引態様 | 媒介 |
|---|
| 情報登録日 | 2025年12月25日 |
|---|
| 情報更新日 | 2025年12月25日 |
|---|



















