借りたい

インプルーブ西早稲田

【 マンション 】【仲介手数料無料】初期費用のクレジットカード決済が可能です

最寄駅所在地間取り面積築年月賃料
管理費等
敷金
礼金

副都心線・西早稲田駅

徒歩 6分
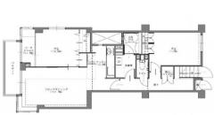
東京都新宿区西早稲田3-18-9 2 LDK 71.14㎡1987年07月284,000 円
15000円
1ヶ月
0ヶ月

デザイナーズリノベーション済み、二面採光の2LDKは3口システムキッチン等の設備が充実。宅配BOXや敷地内ゴミ置場、駐車場等の共用設備に優れ、防犯カメラやテレビモニター付オートロック等の防犯設備も充実

物件写真・間取り

物件概要

物件名

インプルーブ西早稲田

交通機関

副都心線・西早稲田駅 徒歩 6分

山手線・高田馬場駅 徒歩 13分

都電荒川線・面影橋駅 徒歩 3分

建物構造

RC

所在階 / 階数

1階/6階建

契約期間

2年

引渡

相談

現況

設備・条件

エレベーター/宅配ボックス/敷地内ごみ置き場/駐輪場/角住戸/2面採光/オートロック/防犯カメラ/システムキッチン/ガスレンジ付/3口以上コンロ/グリル付/都市ガス/バストイレ別/オートバス/追焚機能浴室/浴室乾燥機/温水洗浄便座/洗面所独立/24時間換気システム/バルコニー/フローリング/全居室フローリング/室内洗濯置/クロゼット/シューズボックス/BS・CS/CATV/TVインターホン/リノベーション/即入居可/仲介手数料不要/保証人不要/初期費用カード決済可/エアコン/通風良好

取引態様

媒介

情報登録日2025年11月06日
情報更新日2025年11月06日

資料請求・お問い合わせ

物件名インプルーブ西早稲田
お問い合わせ内容
お名前
電話番号
メールアドレス
確認のため同じアドレスをご入力ください。
備考欄ご希望の連絡方法、見学希望日、希望条件、質問などがございましたら、ご記入ください
  • スタッフ紹介
  • 採用情報
  • お客様の声
  • マンションギャラリー
スタッフブログ
2021/02/20 
管理手数料無料の理由
2020/01/23 
1月~3月のお部屋探しのコツ!
2020/01/04 
先行申し込みと先行契約に関して
2019/06/16 
転勤
会社案内

リガール株式会社

東京都豊島区東池袋1-31-5 池袋アビタシオン102号室

TEL 03-5962-0382

FAX 03-5962-0383

営業時間 10:00~19:00
定休日 水曜日

宅建免許番号:東京都知事(1)第103377号

Copyright (C)2019リガール株式会社 All Rights Reserved.