エステムプラザ飯田橋タワーレジデンス
【 マンション 】インターネット利用料無料。初期費用のクレジットカード決済可能
| 最寄駅 | 所在地 | 間取り | 面積 | 築年月 | 賃料 管理費等 | 敷金 礼金 |
|---|---|---|---|---|---|---|
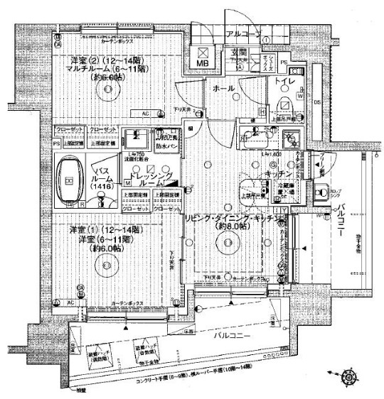
有楽町線・飯田橋駅 徒歩 6分 | 東京都新宿区新小川町5-29 | 2 LDK | 44㎡ | 2012年02月 | 210,000
円
15,000円 | 1ヶ月 1ヶ月 |
南面と西面にバルコニーが広がる角部屋はインターネット利用料が無料。2口ガスのシステムキッチンや浴室乾燥機、独立洗面台、温水洗浄便座等の室内設備や宅配ボックス、ゴミ置場等の共用設備も充実の分譲マンション
物件写真・間取り
物件概要
| 物件名 | エステムプラザ飯田橋タワーレジデンス |
|---|
| 交通機関 | 有楽町線・飯田橋駅 徒歩 6分 丸ノ内線・後楽園駅 徒歩 9分 東西線・神楽坂駅 徒歩 10分 |
|---|
| 建物構造 | RC |
|---|
| 所在階 / 階数 | 10階/14階建 |
|---|
| 主要採光面 | 南西側 |
|---|
| 契約期間 | 2年 |
|---|
| 引渡 | 相談 |
|---|
| 設備・条件 | デザイナーズ/外壁タイル張り/分譲賃貸/高層階/エレベーター/24時間ゴミ出し可/宅配ボックス/敷地内ごみ置き場/駐輪場/バイク置場/角住戸/2面採光/オートロック/防犯カメラ/全居室洋室/システムキッチン/ガスレンジ付/2口コンロ/都市ガス/バストイレ別/浴室乾燥機/温水洗浄便座/洗面所独立/洗面化粧台/24時間換気システム/バルコニー/南面バルコニー/2面バルコニー/フローリング/全居室フローリング/室内洗濯置/クロゼット/シューズボックス/ネット使用料不要/光ファイバー/TVインターホン/保証人不要/初期費用カード決済可/エアコン/通風良好 |
|---|
| 取引態様 | 媒介 |
|---|
| 情報登録日 | 2025年11月06日 |
|---|
| 情報更新日 | 2025年11月06日 |
|---|






