エルファーロ大塚Ⅳ
【 マンション 】【仲介手数料無料】初期費用のクレジットカード決済が可能です
| 最寄駅 | 所在地 | 間取り | 面積 | 築年月 | 賃料 管理費等 | 敷金 礼金 |
|---|---|---|---|---|---|---|
山手線・大塚駅 徒歩 10分 | エルファーロ大塚Ⅳ | 1 LDK | 30.71㎡ | 2023年05月 | 136,000
円
15,000円 | 0ヶ月 0ヶ月 |
【仲介手数料、敷金、礼金、インターネット利用料不要】南西向きの角部屋は2口ガスのシステムキッチンや浴室換気乾燥暖房機、独立洗面台、温水洗浄便座、エアコン等の設備に優れ、宅配ボックス等の共用設備も充実。
物件写真・間取り
物件概要
| 物件名 | エルファーロ大塚Ⅳ |
|---|
| 交通機関 | 山手線・大塚駅 徒歩 10分 山手線・池袋駅 徒歩 14分 有楽町線・東池袋駅 徒歩 13分 |
|---|
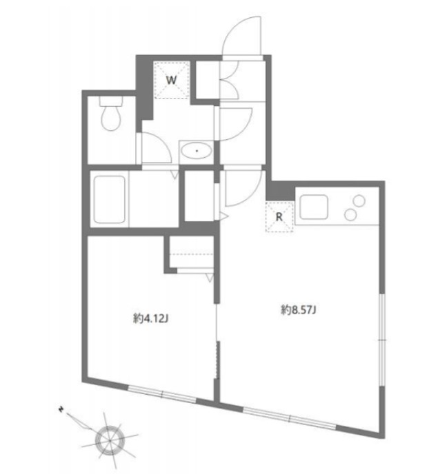
| 間取り詳細 | LDK:8.57畳 洋室:4.12畳 |
|---|
| 所在階 / 階数 | 3階/5階建 |
|---|
| 主要採光面 | 南西側 |
|---|
| 契約期間 | 2年 |
|---|
| 引渡 | 相談 |
|---|
| 現況 | 空 |
|---|
| 設備・条件 | 宅配ボックス/敷地内ごみ置き場/南西向き/角住戸/2面採光/オートロック/ダブルロックキー/防犯カメラ/システムキッチン/ガスレンジ付/2口コンロ/都市ガス/バストイレ別/追焚機能浴室/浴室乾燥機/温水洗浄便座/洗面所独立/シャワー付洗面台/24時間換気システム/フローリング/全居室フローリング/室内洗濯置/室内物干機/クロゼット/シューズボックス/BS・CS/ネット使用料不要/TVインターホン/仲介手数料不要/保証人不要/初期費用カード決済可/エアコン |
|---|
| 取引態様 | 媒介 |
|---|
| 情報登録日 | 2025年10月28日 |
|---|
| 情報更新日 | 2025年10月28日 |
|---|




















