ソルレヴェンテ東池袋
【 マンション 】初期費用のクレジットカード決済可能。追い炊き等の設備が充実
| 最寄駅 | 所在地 | 間取り | 面積 | 築年月 |
|---|---|---|---|---|
山手線・池袋駅 徒歩 11分 | 東京都豊島区東池袋2-12-12 | 1 DK | 30.76㎡ | 2007年12月 |
この物件の募集は終了しています
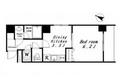
南東向き、角部屋の1DKは追い炊きや浴室換気暖房乾燥機付きのお風呂、グリル付きの2口システムキッチン、独立洗面台、温水洗浄便座等の設備に優れ、宅配ボックスやモニター付オートロック等の共用設備も充実
物件写真・間取り
物件概要
| 物件名 | ソルレヴェンテ東池袋 |
|---|
| 交通機関 | 山手線・池袋駅 徒歩 11分 山手線・大塚駅 徒歩 4分 有楽町線・東池袋駅 徒歩 8分 |
|---|
| 間取り詳細 | DK:5.5畳 洋室:6.5畳 |
|---|
| 建物構造 | RC |
|---|
| 所在階 / 階数 | 8階/8階建 |
|---|
| 主要採光面 | 南側 |
|---|
| 契約期間 | 2年 |
|---|
| 引渡 | 相談 |
|---|
| 現況 | 居住中 |
|---|
| 設備・条件 | 高層階/最上階/エレベーター/宅配ボックス/敷地内ごみ置き場/駐輪場/角住戸/2面採光/オートロック/防犯カメラ/システムキッチン/ガスレンジ付/2口コンロ/グリル付/バストイレ別/オートバス/追焚機能浴室/浴室乾燥機/温水洗浄便座/洗面所独立/シャワー付洗面台/24時間換気システム/バルコニー/南面バルコニー/フローリング/全居室フローリング/室内洗濯置/クロゼット/シューズボックス/BS・CS/CATV/光ファイバー/TVインターホン/保証人不要/初期費用カード決済可/エアコン/通風良好 |
|---|
| 取引態様 | 媒介 |
|---|
| 情報登録日 | 2025年03月15日 |
|---|
| 情報更新日 | 2025年03月15日 |
|---|




















