日神パレステージ新板橋
【 マンション 】初期費用のクレジットカード決済可能。ペットの飼育が可能です
| 最寄駅 | 所在地 | 間取り | 面積 | 築年月 | 賃料 管理費等 | 敷金 礼金 |
|---|---|---|---|---|---|---|
三田線・新板橋駅 徒歩 5分 | 東京都板橋区板橋1-42-5 | 3 LDK | 60.16㎡ | 2006年11月 | 198,000
円
10,000円 | 1ヶ月 1ヶ月 |
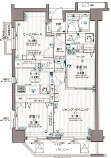
南向き、角部屋、二面採光、6.4畳のサービスルームがある2SLDKはペットの飼育が可能。グリル付きの3口ガスシステムキッチンや追い炊き、浴室乾燥機、独立洗面化粧台、温水洗浄便座等の室内設備が充実
物件写真・間取り
物件概要
| 物件名 | 日神パレステージ新板橋 |
|---|
| 交通機関 | 三田線・新板橋駅 徒歩 5分 埼京線・板橋駅 徒歩 7分 東武東上線・下板橋駅 徒歩 6分 |
|---|
| 建物構造 | RC |
|---|
| 所在階 / 階数 | 4階/11階建 |
|---|
| 主要採光面 | 南側 |
|---|
| 契約期間 | 2年 |
|---|
| 引渡 | 相談 |
|---|
| 設備・条件 | 分譲賃貸/エレベーター/24時間ゴミ出し可/宅配ボックス/敷地内ごみ置き場/駐輪場/バイク置場/南向き/角住戸/2面採光/オートロック/防犯カメラ/24時間緊急通報システム/システムキッチン/ガスレンジ付/3口以上コンロ/グリル付/都市ガス/バストイレ別/オートバス/追焚機能浴室/浴室乾燥機/温水洗浄便座/洗面所独立/24時間換気システム/バルコニー/南面バルコニー/フローリング/全居室フローリング/室内洗濯置/クロゼット/シューズボックス/光ファイバー/TVインターホン/ペット相談/保証人不要/初期費用カード決済可/エアコン |
|---|
| 取引態様 | 媒介 |
|---|
| 情報登録日 | 2026年03月23日 |
|---|
| 情報更新日 | 2026年03月23日 |
|---|

















