クレイシア西早稲田
【 マンション 】独立洗面台等の設備が充実。初期費用のクレジットカード決済可能
| 最寄駅 | 所在地 | 間取り | 面積 | 築年月 | 賃料 管理費等 | 敷金 礼金 |
|---|---|---|---|---|---|---|
副都心線・西早稲田駅 徒歩 6分 | 東京都新宿区大久保2-11-16 | 1 K | 25.84㎡ | 2010年06月 | 103,000
円
12,000円 | 1ヶ月 1ヶ月 |
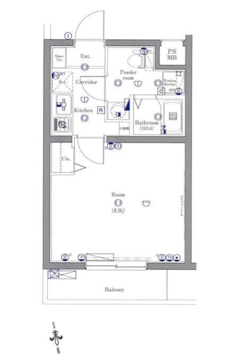
グリル付き2口ガスコンロのシステムキッチンや浴室乾燥機、シャンプードレッサー、温水洗浄便座、エアコン等の室内設備やモニター付オートロック、宅配ボックス、敷地内ゴミ置場等の共用設備も充実の分譲マンション
物件写真・間取り
物件概要
| 物件名 | クレイシア西早稲田 |
|---|
| 交通機関 | 副都心線・西早稲田駅 徒歩 6分 大江戸線・東新宿駅 徒歩 7分 山手線・新大久保駅 徒歩 11分 |
|---|
| 建物構造 | RC |
|---|
| 所在階 / 階数 | 4階/5階建 |
|---|
| 主要採光面 | 北側 |
|---|
| 契約期間 | 2年 |
|---|
| 引渡 | 相談 |
|---|
| 設備・条件 | 分譲賃貸/エレベーター/24時間ゴミ出し可/宅配ボックス/敷地内ごみ置き場/オートロック/ダブルロックキー/防犯カメラ/システムキッチン/ガスレンジ付/2口コンロ/グリル付/都市ガス/バストイレ別/浴室乾燥機/温水洗浄便座/洗面所独立/シャワー付洗面台/24時間換気システム/バルコニー/フローリング/室内洗濯置/クロゼット/シューズボックス/CATV/光ファイバー/TVインターホン/保証人不要/初期費用カード決済可/エアコン |
|---|
| 取引態様 | 媒介 |
|---|
| 情報登録日 | 2026年03月13日 |
|---|
| 情報更新日 | 2026年03月13日 |
|---|













