スカイコートパレス後楽園
【 マンション 】【仲介手数料0.55ヶ月】初期費用のクレジットカード決済可能
| 最寄駅 | 所在地 | 間取り | 面積 | 築年月 | 賃料 管理費等 | 敷金 礼金 |
|---|---|---|---|---|---|---|
三田線・春日駅 徒歩 6分 | 東京都文京区小石川1-13-13 | 2 LDK | 56.3㎡ | 2012年03月 | 241,700
円
18,300円 | 1ヶ月 1ヶ月 |
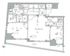
角部屋、二面採光の2LDKはウォークインクローゼットとシューズインクローゼットがあり収納豊富。グリル付きの3口ガスカウンターキッチンや独立洗面化粧台、浴室乾燥機、温水洗浄便座等の設備も充実してます。
物件写真・間取り
物件概要
| 物件名 | スカイコートパレス後楽園 |
|---|
| 交通機関 | 三田線・春日駅 徒歩 6分 丸ノ内線・後楽園駅 徒歩 10分 南北線・東大前駅 徒歩 15分 |
|---|
| 建物構造 | RC |
|---|
| 所在階 / 階数 | 10階/11階建 |
|---|
| 主要採光面 | 東側 |
|---|
| 契約期間 | 2年 |
|---|
| 引渡 | 相談 |
|---|
| 現況 | 空 |
|---|
| 設備・条件 | 分譲賃貸/高層階/エレベーター/24時間ゴミ出し可/宅配ボックス/敷地内ごみ置き場/駐輪場/バイク置場/角住戸/2面採光/オートロック/防犯カメラ/システムキッチン/対面式キッチン/ガスレンジ付/3口以上コンロ/グリル付/都市ガス/バストイレ別/浴室乾燥機/温水洗浄便座/洗面所独立/24時間換気システム/バルコニー/フローリング/全居室フローリング/室内洗濯置/クロゼット/ウォークインクロゼット/シューズボックス/シューズWIC/BS・CS/CATV/光ファイバー/TVインターホン/仲手0.55ヶ月/保証人不要/初期費用カード決済可/エアコン/眺望良好/通風良好 |
|---|
| 取引態様 | 媒介 |
|---|
| 情報登録日 | 2025年10月09日 |
|---|
| 情報更新日 | 2025年10月09日 |
|---|




















