借りたい

COCOCUBE江古田South

【 マンション 】【仲介手数料無料】初期費用のクレジットカード決済が可能です。

最寄駅所在地間取り面積築年月賃料
管理費等
敷金
礼金

西武池袋線・江古田駅

徒歩 6分
東京都練馬区旭丘1-37-2 1 LDK 41.98㎡2020年11月137,000 円
8,000円
1ヶ月
0ヶ月

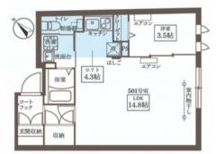
4.3畳のロフトがある最上階、角部屋の1LDKは2口ガスのシステムキッチンや浴室乾燥機、独立洗面台、温水洗浄便座等の設備が整い、オートロックやモニターフォン、ダブルロック、防犯カメラ等の防犯設備も充実

物件写真・間取り

物件概要

物件名

COCOCUBE江古田South

交通機関

西武池袋線・江古田駅 徒歩 6分

大江戸線・新江古田駅 徒歩 7分

西武有楽町線・新桜台駅 徒歩 13分

間取り詳細

LDK:14.8畳 洋室:3.5畳

建物構造

RC

所在階 / 階数

5階/5階建

主要採光面 南東側
契約期間

2年

引渡

相談

現況

居住中

設備・条件

デザイナーズ/外壁コンクリート/宅配ボックス/角住戸/オートロック/ダブルロックキー/防犯カメラ/LDK12畳以上/ロフト/システムキッチン/ガスレンジ付/2口コンロ/都市ガス/バストイレ別/浴室乾燥機/温水洗浄便座/洗面所独立/24時間換気システム/フローリング/全居室フローリング/室内洗濯置/クロゼット/シューズボックス/BS・CS/CATV/光ファイバー/TVインターホン/仲介手数料不要/保証人不要/初期費用カード決済可/エアコン/眺望良好

取引態様

媒介

情報登録日2025年11月13日
情報更新日2025年11月13日

資料請求・お問い合わせ

物件名COCOCUBE江古田South
お問い合わせ内容
お名前
電話番号
メールアドレス
確認のため同じアドレスをご入力ください。
備考欄ご希望の連絡方法、見学希望日、希望条件、質問などがございましたら、ご記入ください
  • スタッフ紹介
  • 採用情報
  • お客様の声
  • マンションギャラリー
スタッフブログ
2021/02/20 
管理手数料無料の理由
2020/01/23 
1月~3月のお部屋探しのコツ!
2020/01/04 
先行申し込みと先行契約に関して
2019/06/16 
転勤
会社案内

リガール株式会社

東京都豊島区東池袋1-31-5 池袋アビタシオン102号室

TEL 03-5962-0382

FAX 03-5962-0383

営業時間 10:00~19:00
定休日 水曜日

宅建免許番号:東京都知事(1)第103377号

Copyright (C)2019リガール株式会社 All Rights Reserved.