- HOME
- マンションギャラリー一覧
- CASA GRAZIE 池袋
CASA GRAZIE 池袋
【 マンション 】初期費用のクレジットカード決済可能。専用トランクルーム付
| 最寄駅 | 所在地 | 間取り | 面積 | 築年月 |
|---|---|---|---|---|
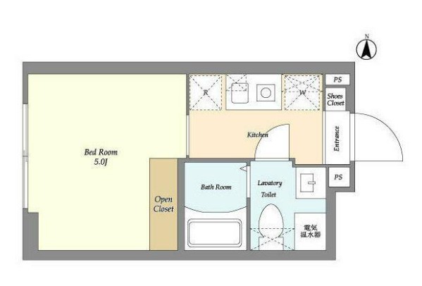
山手線・池袋駅 徒歩 12分 | 東京都豊島区西池袋4-23-2 | 1 K | 17.22㎡ | 2023年12月 |
この物件の募集は終了しています
インターネットが無料で利用可能なオール電化マンション。IHのシステムキッチンや浴室乾燥機、浴室テレビ、独立洗面台、温水洗浄便座等の室内設備や宅配ボックス等の共用設備も充実。トランクルームが無料で利用可
物件写真・間取り
物件概要
| 物件名 | CASA GRAZIE 池袋 |
|---|
| 交通機関 | 山手線・池袋駅 徒歩 12分 西武池袋線・椎名町駅 徒歩 6分 有楽町線・要町駅 徒歩 7分 |
|---|
| 間取り詳細 | 5畳 |
|---|
| 建物構造 | RC |
|---|
| 所在階 / 階数 | 2階/5階建 |
|---|
| 主要採光面 | 西側 |
|---|
| 契約期間 | 2年 |
|---|
| 引渡 | 相談 |
|---|
| 現況 | 居住中 |
|---|
| 設備・条件 | 宅配ボックス/オートロック/ディンプルキー/防犯カメラ/システムキッチン/IHクッキングヒーター/バストイレ別/浴室乾燥機/TV付浴室/温水洗浄便座/洗面所独立/24時間換気システム/オール電化/フローリング/室内洗濯置/クロゼット/シューズボックス/トランクルーム/BS・CS/ネット使用料不要/TVインターホン/保証人不要/初期費用カード決済可/エアコン |
|---|
| 取引態様 | 媒介 |
|---|
| 情報登録日 | 2025年10月02日 |
|---|
| 情報更新日 | 2025年10月02日 |
|---|


















