- HOME
- マンションギャラリー一覧
- ZESTY大塚
ZESTY大塚
【
マンション
】【仲介手数料無料】初期費用のクレジットカード決済が可能です
| 最寄駅 | 所在地 | 間取り | 面積 | 築年月 |
|---|---|---|---|---|
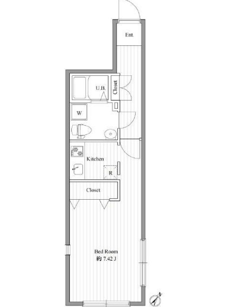
山手線・大塚駅 徒歩 4分 | 東京都豊島区南大塚1-58-9 | 1 K | 29.33㎡ | 2008年05月 |
この物件の募集は終了しています
内外装コンクリート打ち放しのデザイナーズマンション。南東向き、角部屋、複数面採光の室内は2口ガスシステムキッチンや浴室乾燥機、独立洗面台、温水洗浄便座等の設備に優れ、駐輪場やゴミ置場等の共用設備も充実
物件写真・間取り
物件概要
| 物件名 | ZESTY大塚 |
|---|
| 交通機関 | 山手線・大塚駅 徒歩 4分 丸ノ内線・新大塚駅 徒歩 10分 三田線・巣鴨駅 徒歩 10分 |
|---|
| 建物構造 | RC |
|---|
| 所在階 / 階数 | 3階/5階建 |
|---|
| 主要採光面 | 南東側 |
|---|
| 契約期間 | 2年 |
|---|
| 引渡 | 即入居 |
|---|
| 現況 | 空 |
|---|
| 設備・条件 | デザイナーズ/外壁コンクリート/内装コンクリート/敷地内ごみ置き場/駐輪場/東南向き/角住戸/2面採光/3面採光/オートロック/防犯カメラ/システムキッチン/ガスレンジ付/2口コンロ/都市ガス/バストイレ別/浴室乾燥機/温水洗浄便座/洗面所独立/24時間換気システム/フローリング/室内洗濯置/クロゼット/シューズボックス/CATV/光ファイバー/TVインターホン/即入居可/仲介手数料不要/保証人不要/初期費用カード決済可/エアコン/通風良好 |
|---|
| 取引態様 | 媒介 |
|---|
| 情報登録日 | 2025年10月02日 |
|---|
| 情報更新日 | 2025年10月02日 |
|---|



















