- HOME
- マンションギャラリー一覧
- ハーモニーレジデンス神楽坂
ハーモニーレジデンス神楽坂
【 マンション 】追い炊き等の設備が充実。初期費用のクレジットカード決済が可能
| 最寄駅 | 所在地 | 間取り | 面積 | 築年月 |
|---|---|---|---|---|
有楽町線・江戸川橋駅 徒歩 6分 | 東京都文京区水道2-4-21 | 1 LDK | 40.69㎡ | 2016年09月 |
この物件の募集は終了しています
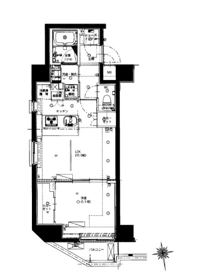
角部屋、二面採光の1LDKはペットの飼育が可能。グリル付きの3口カウンターキッチンや追炊き、浴室乾燥機、三面鏡付洗髪洗面化粧台、温水洗浄便座、エアコン2基、シューズインクローゼット等の設備が充実。
物件写真・間取り
物件概要
| 物件名 | ハーモニーレジデンス神楽坂 |
|---|
| 交通機関 | 有楽町線・江戸川橋駅 徒歩 6分 東西線・神楽坂駅 徒歩 12分 丸ノ内線・茗荷谷駅 徒歩 15分 |
|---|
| 間取り詳細 | LDK:10畳 洋室:5.5畳 |
|---|
| 建物構造 | RC |
|---|
| 所在階 / 階数 | 2階/8階建 |
|---|
| 主要採光面 | 北側 |
|---|
| 契約期間 | 2年 |
|---|
| 引渡 | 相談 |
|---|
| 設備・条件 | 分譲賃貸/エレベーター/24時間ゴミ出し可/宅配ボックス/敷地内ごみ置き場/駐輪場/角住戸/2面採光/オートロック/ダブルロックキー/防犯カメラ/システムキッチン/対面式キッチン/ガスレンジ付/3口以上コンロ/グリル付/都市ガス/バストイレ別/オートバス/追焚機能浴室/浴室乾燥機/温水洗浄便座/洗面所独立/三面鏡付洗面化粧台/シャワー付洗面台/24時間換気システム/バルコニー/フローリング/全居室フローリング/室内洗濯置/クロゼット/シューズボックス/シューズWIC/BS・CS/光ファイバー/TVインターホン/保証人不要/初期費用カード決済可/エアコン/エアコン2台/エアコン全室/通風良好 |
|---|
| 取引態様 | 媒介 |
|---|
| 情報登録日 | 2025年09月12日 |
|---|
| 情報更新日 | 2025年09月12日 |
|---|














