- HOME
- マンションギャラリー一覧
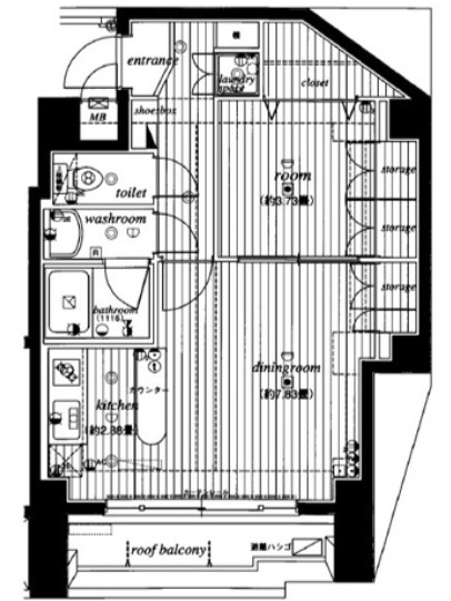
- ミリオンガーデン小石川
ミリオンガーデン小石川
【 マンション 】【仲介手数料0.55ヶ月】初期費用のクレジットカード決済可能
| 最寄駅 | 所在地 | 間取り | 面積 | 築年月 |
|---|---|---|---|---|
丸ノ内線・茗荷谷駅 徒歩 8分 | 東京都文京区小石川5-39-9 | 1 DK | 40.55㎡ | 2003年11月 |
この物件の募集は終了しています
小石川植物園がある自然溢れる住宅街に建つ6階建ての分譲マンションは宅配ボックスやエレベーター等の共用設備が整い、2口ガスのシステムキッチンや温水洗浄便座、独立洗面台、エアコン等の室内設備も充実してます
物件写真・間取り
物件概要
| 物件名 | ミリオンガーデン小石川 |
|---|
| 交通機関 | 丸ノ内線・茗荷谷駅 徒歩 8分 三田線・白山駅 徒歩 14分 三田線・千石駅 徒歩 19分 |
|---|
| 建物構造 | RC |
|---|
| 所在階 / 階数 | 5階/6階建 |
|---|
| 契約期間 | 2年 |
|---|
| 引渡 | 相談 |
|---|
| 現況 | 居住中 |
|---|
| 設備・条件 | 分譲賃貸/エレベーター/宅配ボックス/敷地内ごみ置き場/角住戸/オートロック/防犯カメラ/システムキッチン/ガスレンジ付/2口コンロ/都市ガス/バストイレ別/温水洗浄便座/洗面所独立/バルコニー/ルーフバルコニー/フローリング/全居室フローリング/室内洗濯置/クロゼット/シューズボックス/TVインターホン/仲手0.55ヶ月/保証人不要/初期費用カード決済可/エアコン |
|---|
| 取引態様 | 媒介 |
|---|
| 情報登録日 | 2025年08月26日 |
|---|
| 情報更新日 | 2025年08月26日 |
|---|











