- HOME
- マンションギャラリー一覧
- NEXUS目白
NEXUS目白
【 マンション 】インターネット利用料無料。初期費用のクレジットカード決済可能
| 最寄駅 | 所在地 | 間取り | 面積 | 築年月 |
|---|---|---|---|---|
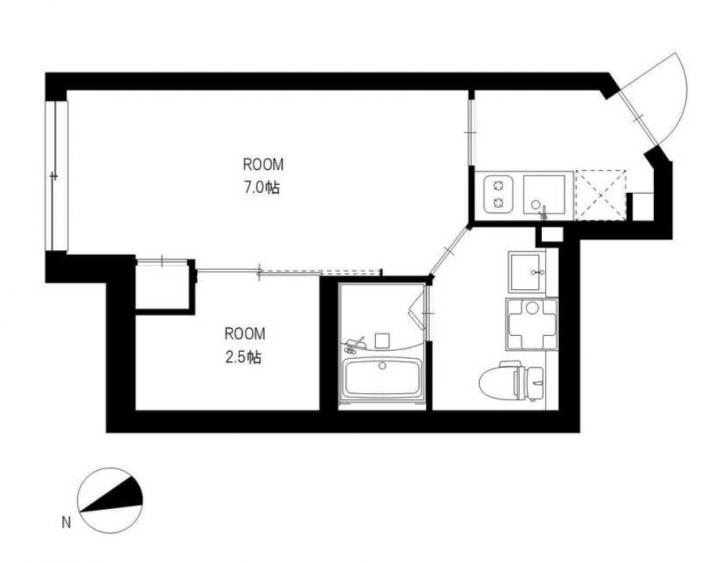
副都心線・雑司が谷駅 徒歩 7分 | 東京都豊島区高田1-29-11 | 1 K | 26.26㎡ | 2022年10月 |
この物件の募集は終了しています
インターネットが無料で楽しめるデザイナーズマンション。閑静な住宅街に建ち、オートロックがあり女性も安心。2口ガスのシステムキッチンや浴室乾燥機、独立洗面台、温水洗浄便座、追い炊き等の室内設備も充実
物件写真・間取り
物件概要
| 物件名 | NEXUS目白 |
|---|
| 交通機関 | 副都心線・雑司が谷駅 徒歩 7分 山手線・高田馬場駅 徒歩 15分 都電荒川線・学習院下駅 徒歩 4分 |
|---|
| 建物構造 | RC |
|---|
| 所在階 / 階数 | 1階/4階建 |
|---|
| 主要採光面 | 北側 |
|---|
| 契約期間 | 2年 |
|---|
| 引渡 | 即入居 |
|---|
| 現況 | 空 |
|---|
| 設備・条件 | デザイナーズ/エレベーター/宅配ボックス/駐輪場/オートロック/システムキッチン/ガスレンジ付/2口コンロ/都市ガス/バストイレ別/追焚機能浴室/浴室乾燥機/温水洗浄便座/洗面所独立/フローリング/全居室フローリング/室内洗濯置/クロゼット/シューズボックス/ネット使用料不要/TVインターホン/即入居可/保証人不要/初期費用カード決済可/エアコン/通風良好 |
|---|
| 取引態様 | 媒介 |
|---|
| 情報登録日 | 2025年08月23日 |
|---|
| 情報更新日 | 2025年08月23日 |
|---|











