- HOME
- マンションギャラリー一覧
- グローリオシェルト駒込
グローリオシェルト駒込
【 マンション 】【仲介手数料無料】初期費用のクレジットカード決済が可能です
| 最寄駅 | 所在地 | 間取り | 面積 | 築年月 |
|---|---|---|---|---|
山手線・駒込駅 徒歩 4分 | 東京都北区中里2-12-6 | 2 LDK | 40.24㎡ | 2024年07月 |
この物件の募集は終了しています
最上階、二面採光の角部屋はペットの飼育が可能。インターネットが無料で利用可能、2口ガスのカウンターキッチンや追い炊き、浴室乾燥機、独立洗面台、温水洗浄便座、ウォークインクローゼット2か所等の設備が充実
物件写真・間取り
物件概要
| 物件名 | グローリオシェルト駒込 |
|---|
| 交通機関 | 山手線・駒込駅 徒歩 4分 京浜東北線・上中里駅 徒歩 14分 三田線・巣鴨駅 徒歩 15分 |
|---|
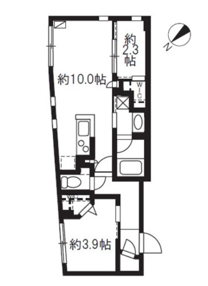
| 間取り詳細 | LDK:10畳 洋室:3.9畳、2.3畳 |
|---|
| 建物構造 | RC |
|---|
| 所在階 / 階数 | 5階/5階建 |
|---|
| 主要採光面 | 北東側 |
|---|
| 契約期間 | 2年 |
|---|
| 引渡 | 相談 |
|---|
| 現況 | 居住中 |
|---|
| 設備・条件 | デザイナーズ/エレベーター/宅配ボックス/敷地内ごみ置き場/駐輪場/バイク置場/角住戸/2面採光/オートロック/ダブルロックキー/ディンプルキー/防犯カメラ/システムキッチン/対面式キッチン/ガスレンジ付/2口コンロ/都市ガス/バストイレ別/追焚機能浴室/浴室乾燥機/温水洗浄便座/洗面所独立/三面鏡付洗面化粧台/シャワー付洗面台/24時間換気システム/フローリング/全居室フローリング/室内洗濯置/クロゼット/ウォークインクロゼット/ウォークインクロゼット2/シューズボックス/ネット使用料不要/TVインターホン/ペット相談/仲介手数料不要/保証人不要/初期費用カード決済可/エアコン/通風良好 |
|---|
| 取引態様 | 媒介 |
|---|
| 情報登録日 | 2025年08月22日 |
|---|
| 情報更新日 | 2025年08月22日 |
|---|



















