- HOME
- マンションギャラリー一覧
- ソルナクレイシア王子
ソルナクレイシア王子
【 マンション 】【仲介手数料無料】初期費用のクレジットカード決済が可能です。
| 最寄駅 | 所在地 | 間取り | 面積 | 築年月 |
|---|---|---|---|---|
京浜東北線・王子駅 徒歩 8分 | 東京都北区滝野川1-53-6 | 2 DK | 41.24㎡ | 2019年03月 |
この物件の募集は終了しています
メゾネットタイプの2DKはインターネット利用料が無料。IHの2口システムキッチンや浴室乾燥機、シャワートイレ、独立洗面台、エアコン等の設備に優れ、ディンプルキーやダブルロック等の防犯設備も充実してます
物件写真・間取り
物件概要
| 物件名 | ソルナクレイシア王子 |
|---|
| 交通機関 | 京浜東北線・王子駅 徒歩 8分 三田線・西巣鴨駅 徒歩 12分 都電荒川線・滝野川一丁目駅 徒歩 3分 |
|---|
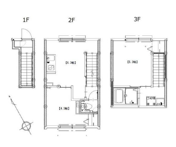
| 間取り詳細 | DK:6.3畳 洋室:4.3畳、5.3畳 |
|---|
| 建物構造 | 鉄骨造 |
|---|
| 所在階 / 階数 | 2-3/3階建 |
|---|
| 主要採光面 | 北東側 |
|---|
| 契約期間 | 2年 |
|---|
| 引渡 | 相談 |
|---|
| 現況 | 居住中 |
|---|
| 設備・条件 | 最上階/ダブルロックキー/ディンプルキー/メゾネット/システムキッチン/2口コンロ/IHクッキングヒーター/バストイレ別/浴室乾燥機/温水洗浄便座/洗面所独立/24時間換気システム/フローリング/全居室フローリング/室内洗濯置/クロゼット/シューズボックス/ネット使用料不要/TVインターホン/仲介手数料不要/保証人不要/初期費用カード決済可/エアコン |
|---|
| 取引態様 | 媒介 |
|---|
| 情報登録日 | 2025年08月20日 |
|---|
| 情報更新日 | 2025年08月20日 |
|---|
















