- HOME
- マンションギャラリー一覧
- ミハス氷川台
ミハス氷川台
【 マンション 】インターネット利用料無料。初期費用のクレジットカード決済可能
| 最寄駅 | 所在地 | 間取り | 面積 | 築年月 |
|---|---|---|---|---|
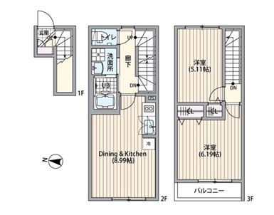
有楽町線・氷川台駅 徒歩 8分 | 東京都練馬区氷川台4-37-5 | 2 DK | 53.41㎡ | 2016年07月 |
この物件の募集は終了しています
最上階、メゾネットタイプの2DKはインターネット利用料が無料(Wi-fi付)。浴室乾燥機やシステムキッチン、独立洗面台、シャワートイレ、テレビモニター付きインターフォン等の室内設備が充実してます。
物件写真・間取り
物件概要
| 物件名 | ミハス氷川台 |
|---|
| 交通機関 | 有楽町線・氷川台駅 徒歩 8分 東武東上線・上板橋駅 徒歩 23分 西武有楽町線・新桜台駅 徒歩 22分 |
|---|
| 間取り詳細 | DK:8.99畳 洋室:6.19畳、5.11畳 |
|---|
| 建物構造 | 鉄骨造 |
|---|
| 所在階 / 階数 | 2-3/3階建 |
|---|
| 主要採光面 | 西側 |
|---|
| 契約期間 | 2年 |
|---|
| 引渡 | 相談 |
|---|
| 現況 | 居住中 |
|---|
| 設備・条件 | 最上階/敷地内ごみ置き場/メゾネット/システムキッチン/都市ガス/バストイレ別/浴室乾燥機/温水洗浄便座/洗面所独立/24時間換気システム/バルコニー/フローリング/全居室フローリング/室内洗濯置/クロゼット/シューズボックス/ネット使用料不要/TVインターホン/保証人不要/初期費用カード決済可/エアコン |
|---|
| 取引態様 | 媒介 |
|---|
| 情報登録日 | 2025年08月10日 |
|---|
| 情報更新日 | 2025年08月10日 |
|---|








