- HOME
- マンションギャラリー一覧
- 343RESIDENCE KORAKUEN
343RESIDENCE KORAKUEN
【 マンション 】【仲介手数料無料】初期費用のクレジットカード決済が可能です
| 最寄駅 | 所在地 | 間取り | 面積 | 築年月 |
|---|---|---|---|---|
丸ノ内線・後楽園駅 徒歩 8分 | 東京都文京区小石川3-16-17 | 3 LDK | 85.88㎡ | 2024年08月 |
この物件の募集は終了しています
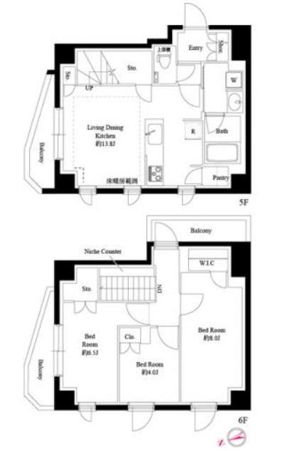
最上階、二面採光、メゾネットタイプの角部屋はペットの飼育が可能。インターネットが無料で利用でき、浄水器やグリル付きの3口カウンターキッチン、床暖房、追い炊き、独立洗面台、エアコン4基等の設備が充実。
物件写真・間取り
物件概要
| 物件名 | 343RESIDENCE KORAKUEN |
|---|
| 交通機関 | 丸ノ内線・後楽園駅 徒歩 8分 三田線・春日駅 徒歩 7分 南北線・東大前駅 徒歩 20分 |
|---|
| 間取り詳細 | LDK:13.8畳 洋室:8畳、6.5畳、4畳 |
|---|
| 建物構造 | RC |
|---|
| 所在階 / 階数 | 6階/6階建 |
|---|
| 主要採光面 | 北側 |
|---|
| 契約期間 | 2年 |
|---|
| 引渡 | 相談 |
|---|
| 現況 | 居住中 |
|---|
| 設備・条件 | 最上階/エレベーター/24時間ゴミ出し可/宅配ボックス/敷地内ごみ置き場/駐輪場/バイク置場/角住戸/2面採光/オートロック/ダブルロックキー/ディンプルキー/防犯カメラ/LDK12畳以上/メゾネット/システムキッチン/ガスレンジ付/3口以上コンロ/グリル付/浄水器/都市ガス/バストイレ別/オートバス/追焚機能浴室/浴室乾燥機/温水洗浄便座/洗面所独立/三面鏡付洗面化粧台/24時間換気システム/床暖房/バルコニー/フローリング/全居室フローリング/室内洗濯置/クロゼット/ウォークインクロゼット/シューズボックス/納戸/ネット使用料不要/TVインターホン/ペット相談/仲介手数料不要/保証人不要/初期費用カード決済可/エアコン/エアコン4台/エアコン全室/眺望良好/通風良好 |
|---|
| 取引態様 | 媒介 |
|---|
| 情報登録日 | 2025年07月18日 |
|---|
| 情報更新日 | 2025年07月18日 |
|---|


























