- HOME
- マンションギャラリー一覧
- AXAS池袋レジデンス
AXAS池袋レジデンス
【 マンション 】独立洗面台等の設備が充実。初期費用のクレジットカード決済可能
| 最寄駅 | 所在地 | 間取り | 面積 | 築年月 |
|---|---|---|---|---|
山手線・池袋駅 徒歩 10分 | 東京都豊島区池袋1-16-26 | 1 K | 25.53㎡ | 2016年12月 |
この物件の募集は終了しています
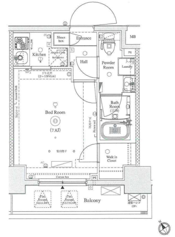
ウォークインクローゼットがあり収納豊富な南西向きの室内は2口ガスのシステムキッチンや浴室乾燥機、独立洗面化粧台、温水洗浄便座、エアコン等の設備に優れ、宅配ボックスやゴミ置場、駐輪場等の共用設備も充実
物件写真・間取り
物件概要
| 物件名 | AXAS池袋レジデンス |
|---|
| 交通機関 | 山手線・池袋駅 徒歩 10分 東武東上線・北池袋駅 徒歩 10分 東武東上線・下板橋駅 徒歩 16分 |
|---|
| 間取り詳細 | 7.8畳 |
|---|
| 建物構造 | RC |
|---|
| 所在階 / 階数 | 9階/11階建 |
|---|
| 主要採光面 | 南西側 |
|---|
| 契約期間 | 2年 |
|---|
| 引渡 | 即入居 |
|---|
| 現況 | 空 |
|---|
| 設備・条件 | 分譲賃貸/エレベーター/24時間ゴミ出し可/宅配ボックス/敷地内ごみ置き場/駐輪場/南西向き/オートロック/防犯カメラ/システムキッチン/ガスレンジ付/2口コンロ/グリル付/都市ガス/バストイレ別/浴室乾燥機/温水洗浄便座/洗面所独立/シャワー付洗面台/バルコニー/南面バルコニー/フローリング/室内洗濯置/クロゼット/ウォークインクロゼット/シューズボックス/ネット使用料不要/TVインターホン/即入居可/保証人不要/初期費用カード決済可/エアコン |
|---|
| 取引態様 | 媒介 |
|---|
| 情報登録日 | 2025年07月14日 |
|---|
| 情報更新日 | 2025年07月14日 |
|---|














