- HOME
- マンションギャラリー一覧
- シティタワー池袋ウエストゲート
シティタワー池袋ウエストゲート
【 マンション 】初期費用のクレジットカード決済可能。床暖房等の設備が充実
| 最寄駅 | 所在地 | 間取り | 面積 | 築年月 |
|---|---|---|---|---|
副都心線・池袋駅 徒歩 12分 | 東京都豊島区高松1-22-1 | 2 LDK | 57.63㎡ | 2010年02月 |
この物件の募集は終了しています
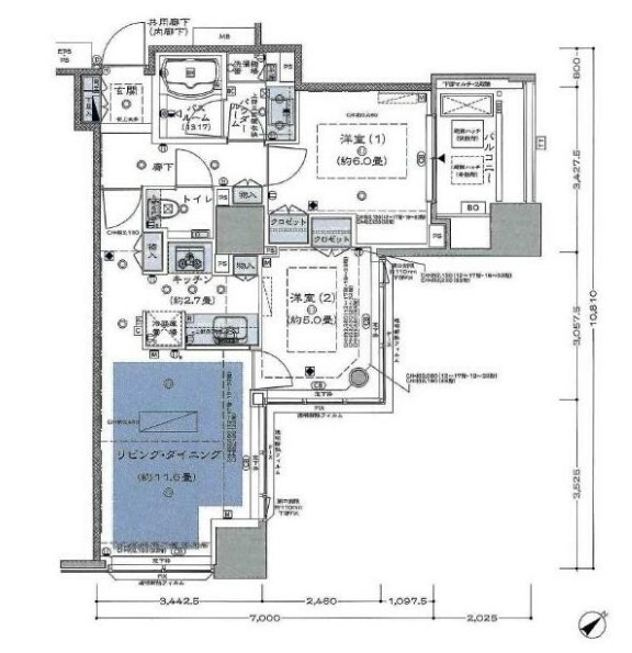
角部屋、二面採光の2LDKは床暖房や追い炊き、ディスポーザー付カウンターキッチン、三面鏡付独立洗面台等の設備が充実。コンシェルジュサービスが生活をサポートしてくれる分譲タワーマンションで快適な新生活
物件写真・間取り
物件概要
| 物件名 | シティタワー池袋ウエストゲート |
|---|
| 交通機関 | 副都心線・池袋駅 徒歩 12分 有楽町線・要町駅 徒歩 6分 有楽町線・千川駅 徒歩 15分 |
|---|
| 間取り詳細 | LDK:14.3畳 洋室:6畳、5畳 |
|---|
| 建物構造 | RC |
|---|
| 所在階 / 階数 | 30階/34階建 |
|---|
| 主要採光面 | 南東側 |
|---|
| 契約期間 | 2年 |
|---|
| 引渡 | 相談 |
|---|
| 現況 | 空 |
|---|
| 設備・条件 | タワー型マンション/分譲賃貸/高層階/エレベーター/エレベーター2基/宅配ボックス/フロントサービス/敷地内ごみ置き場/自走式駐車場/駐輪場/角住戸/2面採光/オートロック/ダブルロックキー/ディンプルキー/防犯カメラ/日勤管理/全居室洋室/システムキッチン/対面式キッチン/ガスレンジ付/3口以上コンロ/浄水器/ディスポーザー/都市ガス/バストイレ別/脱衣所/オートバス/追焚機能浴室/浴室乾燥機/浴室に窓/温水洗浄便座/洗面所独立/洗面化粧台/三面鏡付洗面化粧台/24時間換気システム/床暖房/バルコニー/フローリング/全居室フローリング/室内洗濯置/クロゼット/シューズボックス/光ファイバー/TVインターホン/保証人不要/初期費用カード決済可/エアコン/エアコン2台/通風良好 |
|---|
| 取引態様 | 媒介 |
|---|
| 情報登録日 | 2025年07月12日 |
|---|
| 情報更新日 | 2025年07月12日 |
|---|
















