- HOME
- マンションギャラリー一覧
- ルーブル東十条
ルーブル東十条
【 マンション 】【仲介手数料無料】初期費用のクレジットカード決済が可能です
| 最寄駅 | 所在地 | 間取り | 面積 | 築年月 |
|---|---|---|---|---|
京浜東北線・東十条駅 徒歩 5分 | 東京都北区東十条4-12-7 | 2 LDK | 57.6㎡ | 2018年06月 |
この物件の募集は終了しています
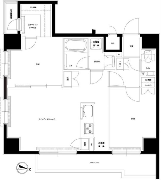
角部屋、二面採光の2LDKはグリル付きの3口ガスカウンターキッチンや追い炊き、浴室乾燥機、三面鏡付洗髪洗面化粧台、温水洗浄便座、エアコン等の設備に優れ、ウォークインクローゼットがあり収納が豊富です。
物件写真・間取り
物件概要
| 物件名 | ルーブル東十条 |
|---|
| 交通機関 | 京浜東北線・東十条駅 徒歩 5分 南北線・王子神谷駅 徒歩 12分 埼京線・板橋駅 徒歩 18分 |
|---|
| 建物構造 | RC |
|---|
| 所在階 / 階数 | 6階/13階建 |
|---|
| 主要採光面 | 東側 |
|---|
| 契約期間 | 2年 |
|---|
| 引渡 | 即入居 |
|---|
| 現況 | 空 |
|---|
| 設備・条件 | 分譲賃貸/高層階/エレベーター/24時間ゴミ出し可/宅配ボックス/敷地内ごみ置き場/駐輪場/角住戸/2面採光/オートロック/防犯カメラ/システムキッチン/対面式キッチン/ガスレンジ付/3口以上コンロ/グリル付/都市ガス/バストイレ別/オートバス/追焚機能浴室/浴室乾燥機/温水洗浄便座/洗面所独立/三面鏡付洗面化粧台/シャワー付洗面台/24時間換気システム/バルコニー/フローリング/全居室フローリング/室内洗濯置/クロゼット/ウォークインクロゼット/シューズボックス/光ファイバー/TVインターホン/即入居可/仲介手数料不要/保証人不要/初期費用カード決済可/エアコン/通風良好 |
|---|
| 取引態様 | 媒介 |
|---|
| 情報登録日 | 2025年06月23日 |
|---|
| 情報更新日 | 2025年06月23日 |
|---|

























