- HOME
- マンションギャラリー一覧
- スカイコートルアナ文京本駒込
スカイコートルアナ文京本駒込
【 マンション 】インターネット利用料無料。初期費用のクレジットカード決済可能
| 最寄駅 | 所在地 | 間取り | 面積 | 築年月 |
|---|---|---|---|---|
山手線・駒込駅 徒歩 7分 | 東京都文京区本駒込5-59-3 | 1 LDK | 40.57㎡ | 2024年02月 |
この物件の募集は終了しています
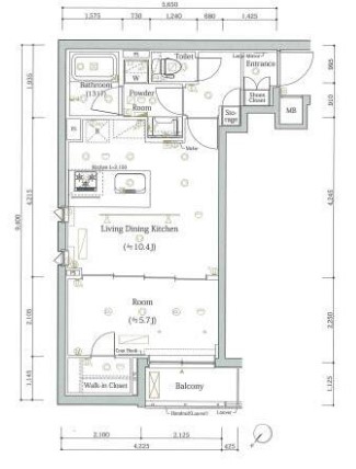
角部屋、二面採光の1LDKはインターネット利用料が無料。グリル付きの3口ガスカウンターキッチンや追い炊き、浴室乾燥機、独立洗面台、エアコン2基等の設備に優れ、ウォークインクローゼットがあり収納も豊富
物件写真・間取り
物件概要
| 物件名 | スカイコートルアナ文京本駒込 |
|---|
| 交通機関 | 山手線・駒込駅 徒歩 7分 三田線・千石駅 徒歩 15分 京浜東北線・田端駅 徒歩 18分 |
|---|
| 間取り詳細 | LDK:10.4畳 洋室:5.7畳 |
|---|
| 建物構造 | RC |
|---|
| 所在階 / 階数 | 2階/5階建 |
|---|
| 主要採光面 | 北西側 |
|---|
| 契約期間 | 2年 |
|---|
| 引渡 | 相談 |
|---|
| 現況 | 居住中 |
|---|
| 設備・条件 | 分譲賃貸/エレベーター/24時間ゴミ出し可/宅配ボックス/敷地内ごみ置き場/駐輪場/角住戸/2面採光/オートロック/防犯カメラ/システムキッチン/対面式キッチン/ガスレンジ付/3口以上コンロ/グリル付/都市ガス/バストイレ別/オートバス/追焚機能浴室/温水洗浄便座/洗面所独立/24時間換気システム/バルコニー/フローリング/全居室フローリング/室内洗濯置/クロゼット/ウォークインクロゼット/シューズボックス/BS・CS/ネット使用料不要/TVインターホン/保証人不要/初期費用カード決済可/エアコン/エアコン2台/エアコン全室/通風良好 |
|---|
| 取引態様 | 媒介 |
|---|
| 情報登録日 | 2025年06月20日 |
|---|
| 情報更新日 | 2025年06月20日 |
|---|



















