- HOME
- マンションギャラリー一覧
- コンフォリア北池袋
コンフォリア北池袋
【 マンション 】【仲介手数料無料】初期費用のクレジットカード決済が可能です
| 最寄駅 | 所在地 | 間取り | 面積 | 築年月 |
|---|---|---|---|---|
東武東上線・下板橋駅 徒歩 10分 | 東京都板橋区熊野町2-6 | 1 LDK | 36.33㎡ | 2024年10月 |
この物件の募集は終了しています
小型犬、猫の飼育が1匹迄可能、インターネットが無料で利用できる南向きの1LDKはグリル付システムキッチンや浴室乾燥機、独立洗面台、温水洗浄便座、エアコン2基等の設備に優れ、バイク置場等の共用設備も充実
物件写真・間取り
物件概要
| 物件名 | コンフォリア北池袋 |
|---|
| 交通機関 | 東武東上線・下板橋駅 徒歩 10分 三田線・板橋区役所前駅 徒歩 13分 東武東上線・北池袋駅 徒歩 13分 |
|---|
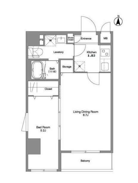
| 間取り詳細 | LD:8.7畳 洋室:5.2畳 |
|---|
| 建物構造 | RC |
|---|
| 所在階 / 階数 | 7階/11階建 |
|---|
| 主要採光面 | 南側 |
|---|
| 契約期間 | 2年 |
|---|
| 引渡 | 相談 |
|---|
| 現況 | 空 |
|---|
| 設備・条件 | エレベーター/宅配ボックス/敷地内ごみ置き場/駐輪場/バイク置場/南向き/角住戸/2面採光/オートロック/ダブルロックキー/ディンプルキー/防犯カメラ/システムキッチン/ガスレンジ付/2口コンロ/グリル付/都市ガス/バストイレ別/浴室乾燥機/温水洗浄便座/洗面所独立/24時間換気システム/バルコニー/南面バルコニー/フローリング/全居室フローリング/室内洗濯置/クロゼット/シューズボックス/ネット使用料不要/TVインターホン/即入居可/ペット相談/仲介手数料不要/保証人不要/初期費用カード決済可/エアコン/エアコン2台/エアコン全室/通風良好/陽当り良好 |
|---|
| 取引態様 | 媒介 |
|---|
| 情報登録日 | 2025年06月12日 |
|---|
| 情報更新日 | 2025年06月12日 |
|---|




















