- HOME
- マンションギャラリー一覧
- CREAL高田馬場
CREAL高田馬場
【 マンション 】仲介手数料、礼金不要。初期費用のクレジットカード決済可能
| 最寄駅 | 所在地 | 間取り | 面積 | 築年月 |
|---|---|---|---|---|
西武新宿線・下落合駅 徒歩 3分 | 東京都新宿区下落合4-4-29 | 1 DK | 30.1㎡ | 2020年09月 |
この物件の募集は終了しています
【仲介手数料、礼金不要】最上階、南向き、二面採光の角部屋はインターネットが無料で利用可能です。2口ガスのシステムキッチンや浴室乾燥機、独立洗面台、温水洗浄便座、エアコン等の室内設備が充実してます。
物件写真・間取り
物件概要
| 物件名 | CREAL高田馬場 |
|---|
| 交通機関 | 西武新宿線・下落合駅 徒歩 3分 山手線・高田馬場駅 徒歩 15分 大江戸線・中井駅 徒歩 14分 |
|---|
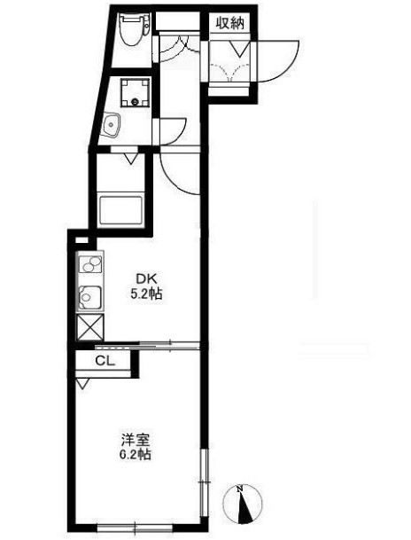
| 間取り詳細 | DK:5.2畳 洋室:6.2畳 |
|---|
| 建物構造 | RC |
|---|
| 所在階 / 階数 | 2階/2階建 |
|---|
| 主要採光面 | 南側 |
|---|
| 契約期間 | 2年 |
|---|
| 引渡 | 即入居 |
|---|
| 現況 | 空 |
|---|
| 設備・条件 | 最上階/宅配ボックス/南向き/角住戸/2面採光/オートロック/防犯カメラ/システムキッチン/ガスレンジ付/2口コンロ/浄水器/都市ガス/バストイレ別/浴室乾燥機/温水洗浄便座/洗面所独立/24時間換気システム/フローリング/全居室フローリング/室内洗濯置/クロゼット/シューズボックス/ネット使用料不要/TVインターホン/敷金・礼金不要/仲介手数料不要/保証人不要/初期費用カード決済可/エアコン/通風良好 |
|---|
| 取引態様 | 媒介 |
|---|
| 情報登録日 | 2025年05月10日 |
|---|
| 情報更新日 | 2025年05月10日 |
|---|










