- HOME
- マンションギャラリー一覧
- アクロス文京
アクロス文京
【 マンション 】インターネット利用料無料。初期費用のクレジットカード決済可能
| 最寄駅 | 所在地 | 間取り | 面積 | 築年月 |
|---|---|---|---|---|
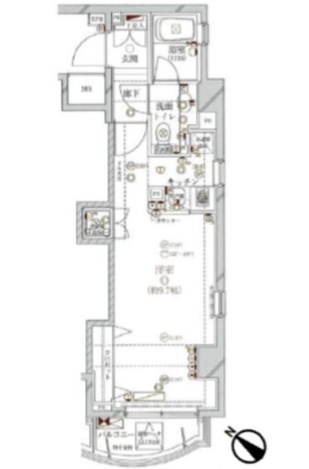
南北線・本駒込駅 徒歩 1分 | 東京都文京区向丘2-36-13 | 1 R | 29.16㎡ | 2003年09月 |
この物件の募集は終了しています
南西向き、二面採光の角部屋はインターネット利用料が無料。2口ガスのカウンターキッチンや浴室乾燥機、独立洗面台、温水洗浄便座等の設備に優れ、宅配ボックスや駐輪場、モニター付オートロック等の共用設備も充実
物件写真・間取り
物件概要
| 物件名 | アクロス文京 |
|---|
| 交通機関 | 南北線・本駒込駅 徒歩 1分 三田線・白山駅 徒歩 5分 千代田線・千駄木駅 徒歩 13分 |
|---|
| 建物構造 | RC |
|---|
| 所在階 / 階数 | 3階/13階建 |
|---|
| 主要採光面 | 南西側 |
|---|
| 契約期間 | 2年 |
|---|
| 引渡 | 相談 |
|---|
| 現況 | 居住中 |
|---|
| 設備・条件 | 分譲賃貸/エレベーター/宅配ボックス/敷地内ごみ置き場/駐輪場/南西向き/角住戸/2面採光/オートロック/防犯カメラ/システムキッチン/対面式キッチン/ガスレンジ付/2口コンロ/都市ガス/バストイレ別/浴室乾燥機/温水洗浄便座/洗面所独立/24時間換気システム/バルコニー/南面バルコニー/フローリング/室内洗濯置/クロゼット/シューズボックス/ネット使用料不要/TVインターホン/仲介手数料不要/保証人不要/初期費用カード決済可/エアコン/通風良好 |
|---|
| 取引態様 | 媒介 |
|---|
| 情報登録日 | 2025年05月09日 |
|---|
| 情報更新日 | 2025年05月09日 |
|---|























