- HOME
- マンションギャラリー一覧
- アクサス駒込ラクシーズ
アクサス駒込ラクシーズ
【 マンション 】ペットの飼育が可能。初期費用のクレジットカード決済可能です
| 最寄駅 | 所在地 | 間取り | 面積 | 築年月 |
|---|---|---|---|---|
山手線・駒込駅 徒歩 4分 | 東京都豊島区駒込1-16-8 | 2 K | 30.31㎡ | 2008年02月 |
この物件の募集は終了しています
|
物件写真・間取り
物件概要
| 物件名 | アクサス駒込ラクシーズ |
|---|
| 交通機関 | 山手線・駒込駅 徒歩 4分 三田線・千石駅 徒歩 16分 京浜東北線・田端駅 徒歩 15分 |
|---|
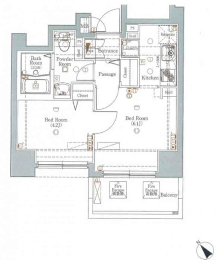
| 間取り詳細 | 洋室:6.1畳、4.2畳 |
|---|
| 建物構造 | RC |
|---|
| 所在階 / 階数 | 2階/10階建 |
|---|
| 主要採光面 | 南西側 |
|---|
| 契約期間 | 2年 |
|---|
| 引渡 | 相談 |
|---|
| 現況 | 空 |
|---|
| 設備・条件 | 分譲賃貸/エレベーター/24時間ゴミ出し可/宅配ボックス/敷地内ごみ置き場/駐輪場/南西向き/角住戸/オートロック/防犯カメラ/システムキッチン/ガスレンジ付/2口コンロ/都市ガス/バストイレ別/オートバス/追焚機能浴室/浴室乾燥機/温水洗浄便座/洗面所独立/24時間換気システム/バルコニー/南面バルコニー/フローリング/全居室フローリング/室内洗濯置/クロゼット/シューズボックス/光ファイバー/TVインターホン/ペット相談/ルームシェア相談/保証人不要/初期費用カード決済可/エアコン |
|---|
| 取引態様 | 媒介 |
|---|
| 情報登録日 | 2025年05月02日 |
|---|
| 情報更新日 | 2025年05月02日 |
|---|






