- HOME
- マンションギャラリー一覧
- サンウッド文京千駄木フラッツ
サンウッド文京千駄木フラッツ
【 マンション 】初期費用のクレジットカード決済可能。床暖房等の設備が充実
| 最寄駅 | 所在地 | 間取り | 面積 | 築年月 |
|---|---|---|---|---|
千代田線・千駄木駅 徒歩 1分 | 東京都文京区千駄木2-31-3 | 2 LDK | 54.77㎡ | 2006年02月 |
この物件の募集は終了しています
角部屋、二面採光の2LDKはリビングの床暖房やグリル付きの3口システムキッチン、追い炊き、浴室乾燥機、三面鏡付独立洗面化粧台、温水洗浄便座等の設備に優れ、宅配ボックスやオートロック等の共用設備も充実
物件写真・間取り
物件概要
| 物件名 | サンウッド文京千駄木フラッツ |
|---|
| 交通機関 | 千代田線・千駄木駅 徒歩 1分 南北線・本駒込駅 徒歩 13分 山手線・日暮里駅 徒歩 13分 |
|---|
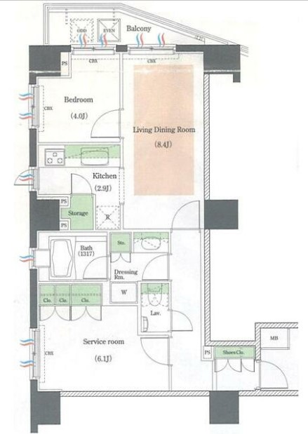
| 間取り詳細 | LDK:11.3畳 洋室:6.1畳、4畳 |
|---|
| 建物構造 | RC |
|---|
| 所在階 / 階数 | 4階/14階建 |
|---|
| 主要採光面 | 北側 |
|---|
| 契約期間 | 2年 |
|---|
| 引渡 | 即入居 |
|---|
| 現況 | 空 |
|---|
| 設備・条件 | 分譲賃貸/エレベーター/24時間ゴミ出し可/宅配ボックス/敷地内ごみ置き場/角住戸/2面採光/オートロック/防犯カメラ/システムキッチン/ガスレンジ付/3口以上コンロ/グリル付/ディスポーザー/都市ガス/バストイレ別/オートバス/追焚機能浴室/浴室乾燥機/温水洗浄便座/洗面所独立/三面鏡付洗面化粧台/24時間換気システム/床暖房/バルコニー/フローリング/全居室フローリング/室内洗濯置/クロゼット/シューズボックス/TVインターホン/保証人不要/初期費用カード決済可/エアコン/通風良好 |
|---|
| 取引態様 | 媒介 |
|---|
| 情報登録日 | 2025年04月21日 |
|---|
| 情報更新日 | 2025年04月21日 |
|---|




















